Продается квартира по адресу ПОБЕДИТЕЛЕЙ 123, Минск
- Количество комнат: трехкомнатная
- Этаж: 2 этаж из 10
- Тип жилья: вторичное
- Тип дома: блочный
- Ремонт: дизайнерский
- Санузел: 2 сан.узла
- Планировка: повышенной комфортности
- Балкон: лоджия застеклена
- Парковка: платная
- Год постройки: 2015
Продается 3-комнатная квартира, г.Минск, просп.Победителей,123.
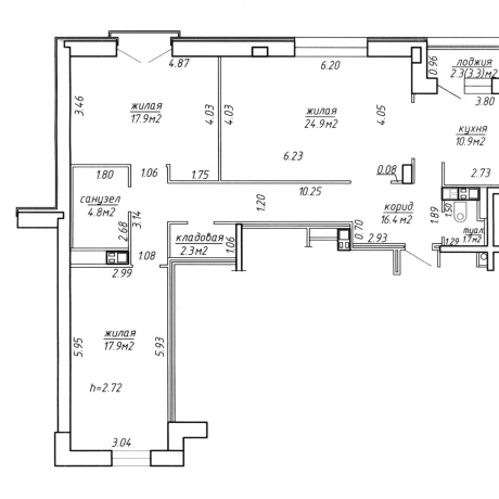
Удобная продуманная планировка. Общая площадь квартиры 96.8м2 (по СНБ 99.1м2). Жилая 60.7м2 состоит из просторной гостиной 24.9м2, уютной спальни 17.9м2 с двумя гардеробами и зонированной детской комнаты 17.9м2. Просторная кухня 10.9м2, два санузла, большая оборудованная гардеробная 2.3м2, застекленная лоджия 3.3м2. Высота потолков 2.72м. Окна выходят на разные стороны. Квартира расположена на 2 этаже 10 этажного блочного дома (2015 г.).
Квартира полностью готова к проживанию. Сделан отличный дизайнерский ремонт из дорогостоящих материалов. Установлены качественные окна ПВХ, металлическая дверь с улучшенной звукоизоляцией, итальянские межкомнатные двери Armadillo Потолки из экологически чистого гипсокартона. Сантехника производства Германии (Grohe), Турции (Vitra), Чехии (Alca), Испании (Roca). Бытовая техника Bosch, Zanussi, LG, Samsung. На кухне встроенная техника Bosch, сантехника Blanco, встроенный холодильник Whirlpool, посудомоечная машина Delonghi. Все жилые помещения оборудованы системами кондиционирования. Множество регулируемых точечных источников света. Установлен видеодомофон.
После продажи оставим практически всё, что есть на фото. Кухня со встроенной бытовой техникой (варочная панель, духовой шкаф, вытяжка, посудомойка, холодильник); обеденная группа (стол и стулья); 3 телевизора; диван; двуспальная кровать; стеллажные системы в гардеробных; стиральная и сушильная машины; детская мебель и другое).
Комфортные условия для проживания. В доме есть подземный паркинг, в котором за квартирой закреплено 2 машиноместа. Территория находится под видеонаблюдением.
Развитая инфраструктура. Рядом находятся крупные торговые центры («Арена-Сити», «Замок»), спортивные объекты («Минск-Арена», футбольный манеж, теннисные корты), медицинские учреждения, школы, детские сады, аптеки и банки.
Экологически чистый район Минска. Это идеальное место для прогулок, отдыха и активного образа жизни. Природа и отдых — уникальное соседство с биологическим заказником «Лебяжий» и водохранилищем «Дрозды» создаёт ощущение загородного уюта прямо в центре города. Обустроенные пляжи с игровыми площадками, прокат лодок и байдарок. Наличие велодорожек, зон для прогулок, крупнейшего в Европе аквапарка и спортивных комплексов делает район идеальным для тех, кто ценит здоровье и движение.
Проспект Победителей - престижное и живописное место, настоящее украшение столицы. Вдоль всего проспекта располагаются значимые для города архитектурные сооружения и световые инсталляции. Поэтому здесь, Ваша жизнь всегда будет яркой и насыщенной!
Сделайте шаг навстречу своей мечте! Звоните, согласуем удобное время осмотра. Поможем выгодно продать вашу недвижимость для покупки данного объекта. Бесплатно проконсультируем, окажем профессиональную помощь в сложных вопросах с недвижимостью, обеспечим юридическое сопровождение сделки и безопасность взаиморасчетов. Квалифицированные специалисты с большим опытом работы.
ОДО "Риэлтерский Дом", г.Минск, ул.Берестянская д.12 оф.110, 111. УНП 190113134, лицензия на право осуществления деятельности по оказанию юридических услуг (риэлтерские услуги) №02240/55 выдана 06.06.2005 Министерством юстиции Республики Беларусь, договор №73/1 от 17.12.2025
- Регион: Минск и район
- Населенный пункт: Минск
- Микрорайон: Лебяжий
- Адрес: ПОБЕДИТЕЛЕЙ 123
- Район: Центральный
- Контактное лицо: Риэлтерский Дом
- Телефон: +375 44 552-50-70
- E-mail: rd-odo@mail.ru
- Телефон: +375 44 552-50-70
- Продажа квартиры
- Условия продажи: чистая продажа
- Собственность: частная


в избранное



























































































































