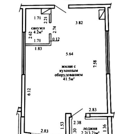
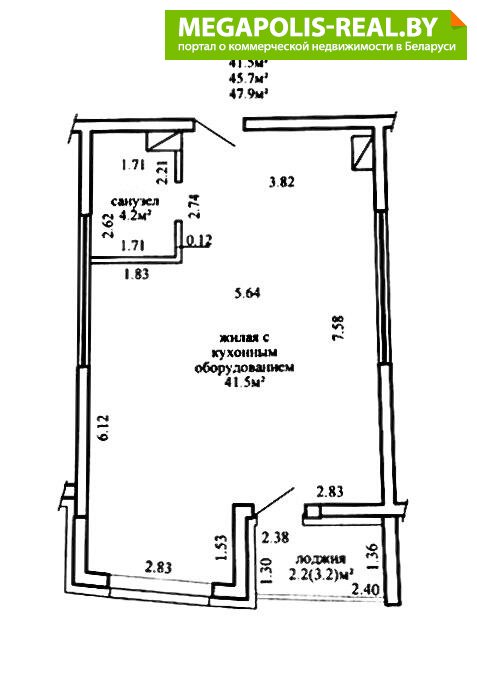
Продается квартира по адресу Леонида Щемелёва ул. д. 18, г. Минск
- Количество комнат: двухкомнатная
- Этаж: 3 этаж из 25
- Санузел: раздельный
- Планировка: новостройка
- Год постройки: 2024
Евродвушка в ЖК "Минск-Мир", в доме Амстердам. Прекрасная планировка и расположение дома, даст Вам возможность воплотить Все ваши мечты.
Планировка позволяет разделить и распланировать в удобное и функциональное пространство.
Ждём на показы в любое удобное для Вас время. Возьмем в зачет Вашу недвижимость.
Общая площадь указана по СНБ.
Лицензия: №02240/362 МЮ РБ, 31.07.2018
- Регион: Минск и район
- Населенный пункт: г. Минск
- Жилой комплекс: Минск Мир
- Адрес: Леонида Щемелёва ул. д. 18
- Район: Октябрьский
- Контактное лицо: Елена
- Телефон: +375 29 698-98-89
- Телефон: +375 29 698-98-89
- Продажа квартиры


в избранное













































