Продается квартира по адресу Скрыганова ул. д. 4 к. Б, г. Минск
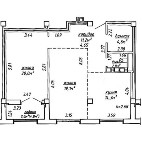
- Количество комнат: двухкомнатная
- Этаж: 12 этаж из 13
- Санузел: раздельный
- Год постройки: 2012
Продается просторная 2-комнатная квартира 74 м2 с дизайнерским ремонтом в престижном районе Минска!
Адрес: г. Минск, ул. Скрыганова, 4Б (ЖК Каскад повышенной комфортности, 2012 г.п.) Этаж: 12/13 Планировка: спальня + гостинная с кухней, раздельный санузел, застекленная лоджия.
Ключевые преимущества и отделка:
Качественная отделка по индивидуальному проекту: Полы: Комбинация итальянской плитки и массива американского ореха. На кухне и в ванне установлен теплый пол. Качественные материалы: Итальянская мебель от "Фурман". Кухня: Встроенная техника (варочная поверхность, духовой шкаф, вытяжка, холодильник, посудомоечная машина, СВЧ-печь, стиральная машина). Фурнитура премиум-класса Blum с системой доводчиков. Установлен кондиционер Daikin с управлением через смартфон), приточная вентиляция.
Идеальное расположение и шаговая доступность (до 10 мин пешком): Метро: Станция "Молодежная" (5-7 мин). Торговля: ТЦ "Корона" (5-7 мин). Образование: Детские сады, школы. Транспорт: Остановки автобусов/троллейбусов (рядом с домом). Деловая среда: Близость к деловым кварталам, удобный выезд на магистрали. Преимущества жилого комплекса:** Безопасность: Огороженная охраняемая территория, видеонаблюдение по периметру. Комфорт: Быстрые немецкие лифты, чистые подъезды. Тишина: Спокойная атмосфера. Вид: Отличный вид с лоджии (12 этаж).
Общая площадь указана по СНБ.
Лицензия: №02240/362 от 31.07.2018, Министерство юстиции РБ
- Регион: Минск и район
- Населенный пункт: г. Минск
- Жилой комплекс: Каскад
- Микрорайон: Пушкина
- Адрес: Скрыганова ул. д. 4 к. Б
- Метро: Молодежная
- Район: Фрунзенский
- Контактное лицо: Агент
- Телефон: +375 44 567-37-06
- Телефон: +375 44 567-37-06
- Продажа квартиры


в избранное


















































































