Продается квартира по адресу Чеботарева ул. д. 16, г. Минск
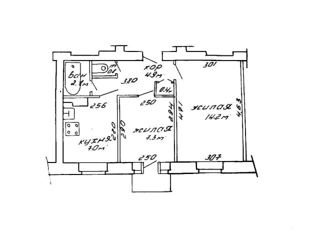
- Количество комнат: трехкомнатная
- Этаж: 6 этаж из 8
- Санузел: раздельный
- Планировка: новостройка
- Год постройки: 2022
Продается просторная квартира в современном, энергоэффективным доме! Квартира располагается на комфортном 6 этаже 8 этажного дома. Квартира угловая, что дает уникальные виды из всех окон! Дом стоит на на монолитном стилобате, под которыми предусмотрена парковка открытого типа в наземном уровне для жильцов. Вход в подъезд возможен с парковки и со двора. Видеонаблюдение.
Светлая кухня, изолированные комнаты, просторный коридор, лоджия и кладовая не оставят Вас равнодушными. В квартире выполнены работы по электрике. Готова к чистовой отделке — возможность создать интерьер по собственному вкусу. Большой тамбур на 2 квартиры.
Великолепная шумоизоляция, надёжные коммуникации. Дом окружён зелёными дворами и малоэтажной застройкой.
Рядом сквер Клумова, Антоновский парк, магазины, школы, детские сады, кафе и остановки общественного транспорта. До центра — около 15 минут.
Тихий, зелёный район с атмосферой старого Минска и комфортом современных новостроек.
Отличное место для жизни в мегаполисе!
- Регион: Минск и район
- Населенный пункт: г. Минск
- Адрес: Чеботарева ул. д. 16
- Район: Партизанский
- Контактное лицо: Агентство Алькор
- Телефон: +375 33 914-28-28
- Телефон: +375 33 914-28-28
- Продажа квартиры


в избранное



































