Продается квартира по адресу Победителей просп. д. 115, г. Минск
- Количество комнат: трехкомнатная
- Этаж: 16 этаж из 30
- Санузел: раздельный
- Планировка: повышенной комфортности
- Год постройки: 2018
Дизайнерская квартира в жилом комплексе «Лазурит» с парковочным местом.
Представляем вашему вниманию 3-комнатную квартиру с захватывающим видом на Дрозды и Лебяжий, расположенную в самом высоком небоскребе Беларуси - ЖК «Лазурит». Эта жемчужина включает в себя не только потрясающую панораму, но и уникальное сочетание комфорта, стиля и функциональности.
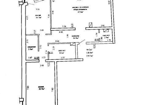
В квартире сделан качественный ремонт и установлена немецкая техника. Ее продуманная планировка включает в себя просторную кухню - гостиную , 2 уютные спальни (одна из них с выходом на лоджию и кабинетом ), гардеробную, ванную комнату и постирочную. Высокие потолки (2,85м) усиливают ощущение пространства и увеличивают визуальный объем помещений.
Комфортное машиноместо в подземном паркинге с возможностью зарядки для электромобилей делает это предложение идеальным для современных автовладельцев. А обустроенные детские площадки, спортивные зоны и огороженная территория жилого комплекса создают превосходные условия для всей семьи.
ЖК «Лазурит» - это безупречное сочетание роскоши, комфорта и современных технологий, делающее его одним из лучших мест для жизни и отдыха. Не упустите свой шанс стать обладателем этого уникального жилья!
- Регион: Минск и район
- Населенный пункт: г. Минск
- Жилой комплекс: Лазурит
- Микрорайон: Лебяжий
- Адрес: Победителей просп. д. 115
- Район: Центральный
- Контактное лицо: Анастасия
- Телефон: +375 29 196-39-03
- Телефон: +375 29 196-39-03
- Продажа квартиры


в избранное





































































































































































