Продается квартира по адресу Победителей просп. д. 115, г. Минск
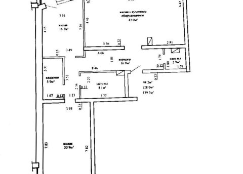
- Количество комнат: двухкомнатная
- Этаж: 26 этаж из 30
- Санузел: раздельный
- Планировка: новостройка
- Год постройки: 2022
В подарок прилагается готовый дизайнерский проект,строительные материалы включающие- плитку для санузла, освещение, кварц-винил, гипсокартон и другие необходимые материалы. Квартира подготовлена под финишную отделку: установлен кондиционер, проведены электрические и сантехнические работы, уложен тёплый пол. Всё готово для комфортного проживания. Пространство легко зонируется на две уютные комнаты. Жилище расположено на солнечной стороне здания, что гарантирует максимум естественного света в течение дня. Отсутствие соседей добавляет приватности и спокойствия вашему новому дому.
Отличное расположение, экологически чистый микрорайон, возле дома Минск-Арена, плавательный бассейн, много спортивных комплексов, рядом водохранилище Дрозды с обустроенными зонами отдыха и пляжем, велодорожки, лесопарк, многочисленные кафе и рестораны, магазины, в шаговой доступности школа, детские сады, развивающие и обучающие детские центры.
Работаем с различными видами кредитования:
- Система строительных сбережений от Беларусбанка;
-Семейный капитал;
-Ипотечное кредитование и все виды кредитования на покупку недвижимости.
А также:
-Подыщем выгодный для Вас банк;
-Поможем продать вашу недвижимость для покупки этой.
Напишите нам в удобный для Вас мессенджер:
Viber | Telegram | WhatsApp
Ответим на Ваши вопросы, предоставим всю необходимую информацию.
ООО «Артель Недвижимость»УНП 193820882Лицензия Министерства Юстиции №48250000081913 от 06.03.2025 г.Договор № 681/2 от 24.11.2025
- Регион: Минск и район
- Населенный пункт: г. Минск
- Жилой комплекс: Лазурит
- Микрорайон: Лебяжий
- Адрес: Победителей просп. д. 115
- Район: Центральный
- Контактное лицо: Недвижимость
- Телефон: +375 29 533-80-44
- Телефон: +375 29 533-80-44
- Продажа квартиры


в избранное











































































































































