Продается квартира по адресу Парковая ул. д. 4, аг. Сеница
- Количество комнат: трехкомнатная
- Этаж: 5 этаж из 11
- Санузел: раздельный
- Планировка: новостройка
- Год постройки: 2023
Вы мечтаете о своем уголке в зеленом пригороде Минска? Тогда вам понравится эта 3-комнатная квартира с прекрасной планировкой в новом доме по улице Парковая, 4 в аг. Сеница.
Это молодой и перспективный район, где есть все для комфортной жизни и отдыха.
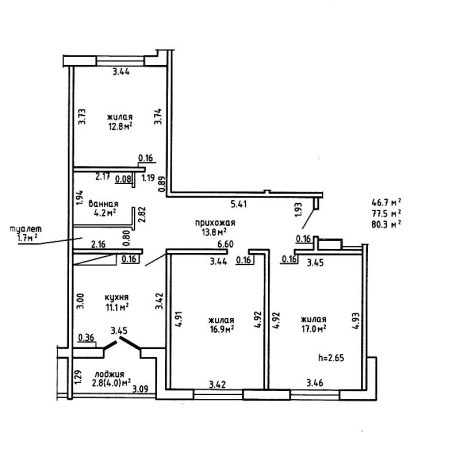
Расположена квартира на пятом этаже одиннадцатиэтажного панельного дома 2023 года постройки. Общая площадь квартиры составляет 80.3 по СНБ кв. метров, жилая - 46.7 кв. метров, кухня - 11,1 кв. метров.
Квартира под отделку, что дает вам возможность воплотить свои дизайнерские фантазии. Здесь вы найдете две просторные жилые комнаты, большую кухню с выходом на застекленную лоджию, где можно наслаждаться видом на природу.
Во дворе дома есть новая оборудованная детская площадка, где ваши дети будут в безопасности и веселье. Также есть большая свободная парковка, где вы всегда найдете место для своего автомобиля. В 380 метрах от дома протекает река «Сеница», где можно отдохнуть или просто погулять по берегу.
Вся инфраструктура в шаговой доступности: детский сад, новая школа с бассейном и большой спортивной площадкой, поликлиника и другие объекты. Рядом строится большой новый торговый центр «Сеница», где вы сможете сделать покупки.
Это прекрасный вариант для тех, кто любит большой город, но жить хочет в тишине и на свежем воздухе. Не упустите свой шанс приобрести квартиру своей мечты по доступной цене!
Лицензия: 02240/446 от 11.07.2022, Министерство юстиции РБ
- Контактное лицо: Фаттория
- Телефон: +375 29 190-00-88
- Телефон: +375 29 190-00-88
- Продажа квартиры


в избранное









































