Аренда: Аренда офиса 270 кв.м в бизнес-центре воле МЕТРО, Минск,
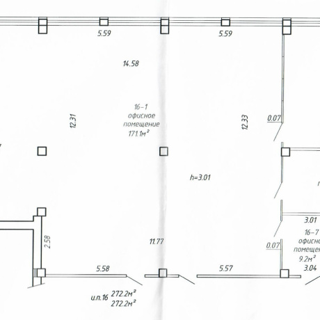
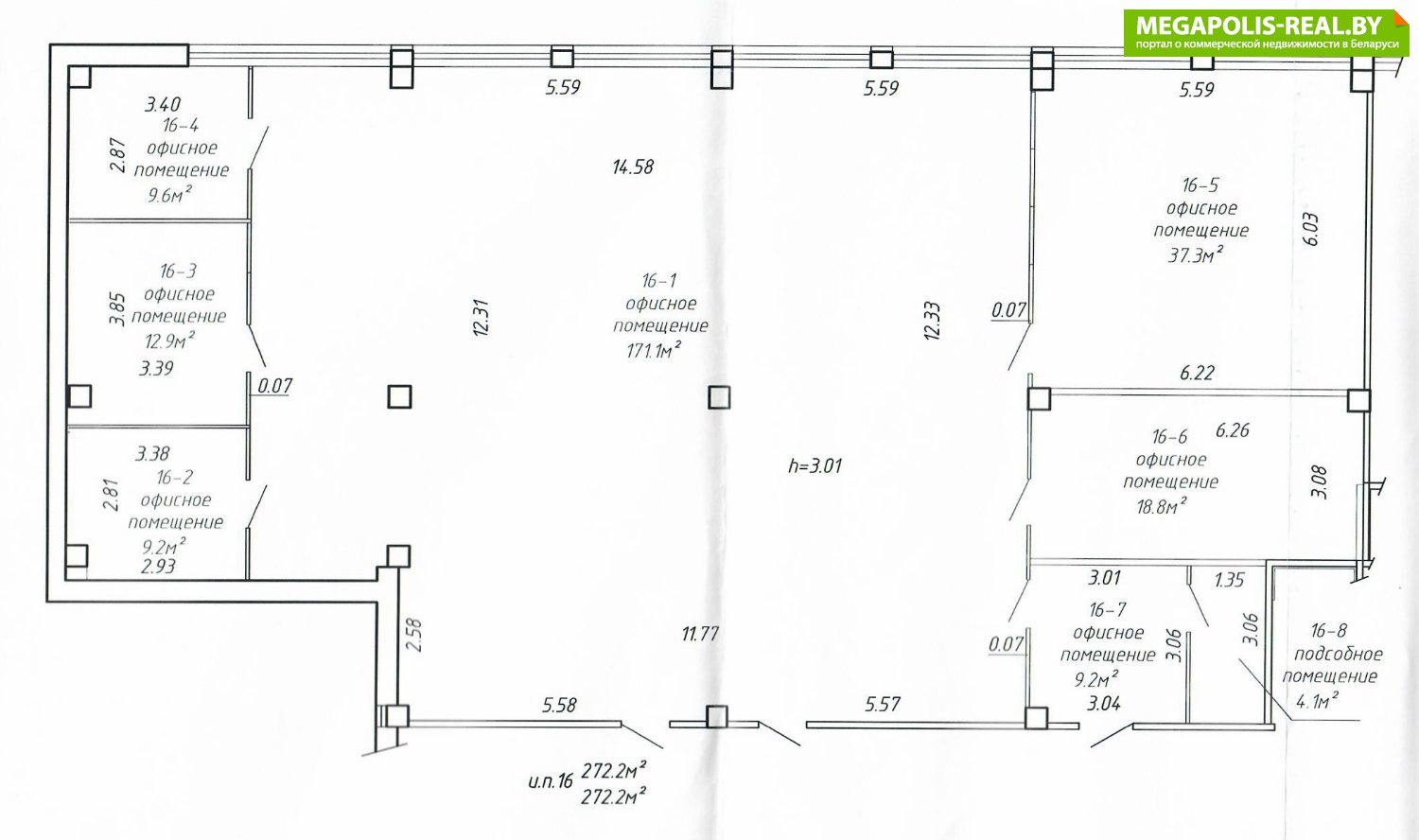
Сдается в аренду офис 270 кв.м, отдельные блок для всей компании, удобная нарезка кабинетов, кухня с мебелью, кондиционеры, приточно-вытяжная вентиляция, пропускная система, в бизнес-центе на первом этаже находяться магазин, аптека, фитнес центр, метро в шаговой доступности.
- Площадь: 270 м2
- Этаж: 5
- Ремонт: да
- Интернет: да
- Охрана: да
- Парковка: да
- Режим работы здания: 24/7
- Близость к метро: Институт Культуры
- Питание: магазин
- Бизнес-центр: Жуковского, 11 А
- Класс бизнес-центра: C
- Регион: Минск и район
- Населенный пункт: Минск
- Район: Октябрьский
- Микрорайон: Чкаловский
- Адрес: ЖУКОВСКОГО 11 А
- Контактное лицо: Ирина
- Телефон: +375 29 151-79-64
- E-mail: fediram@mail.ru
- Телефон: +375 29 151-79-64
- Вид сделки: Предложение
- Цена: с НДС
- Форма собственности: Частная


в избранное

















































