Аренда: Аренда офиса 40,8/98,5 м2 ул Притыцкого 62, Минск,
Офисы формата openspase расположены на 1-м этаже в комфортном бизнес-центре по адресу ул.Притыцкого, 62.
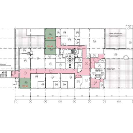
Доступная площадь для аренды:
- кабинет - 40,8 кв.м.
- офисный блок с кухней и выходом на террасу - 98,5 кв.м.
Во всех помещениях выполнен ремонт, установлена система кондиционирования, разведены электрические и слаботочные сети.
Здание оснащено системой видеонаблюдения, пожарной сигнализацией и системой естественной вентиляции, отделка в кабинетах и местах общего пользования выполнена в современном стиле, предусмотрены зоны ожидания и отдыха, работает кафе.
Для комфорта арендаторов предусмотрены:
- раздельные санузлы на этаже
- охраняемая территория
- собственная парковка
- доступ 24/7
Удобное транспортное сообщение - в 300 м. находится ст.м. Кунцевщина, остановки наземного общественного транспорта, быстрый выезд на ул.Притыцкого и МКАД.
Развитая инфраструктура - в непосредственной близости сосредоточены объекты делового назначения, общественного питания и сферы услуг.
Если вас заинтересовало предложение, позвоните нам и мы ответим на все ваши вопросы!
Арендатор не оплачивает услуги риэлтерской организации!
- Год постройки: 1981
- Площадь: 98 м2
- Этаж: 1
- Ремонт: есть
- Интернет: есть
- Близость к метро: Кунцевщина
- Питание: магазин
- МФК: Притыцкого, 62
- Регион: Минск и район
- Населенный пункт: Минск
- Район: Фрунзенский
- Микрорайон: Кунцевщина
- Адрес: Притыцкого 62
- Контактное лицо: Отдел коммерческой недвижимости
- Телефон: +375 29 380-85-85
- E-mail: marielt.komm@mail.ru
- Телефон: +375 29 380-85-85
- Вид сделки: Предложение
- Цена: без НДС
- Форма собственности: Частная
- Стоимость коммунальных услуг
(за все помещение):В отопительный сезон: - руб.В неотопительный сезон: - руб.


в избранное



















