Аренда: Аренда офиса 815,5 м2 ул Мястровская 26, Минск,
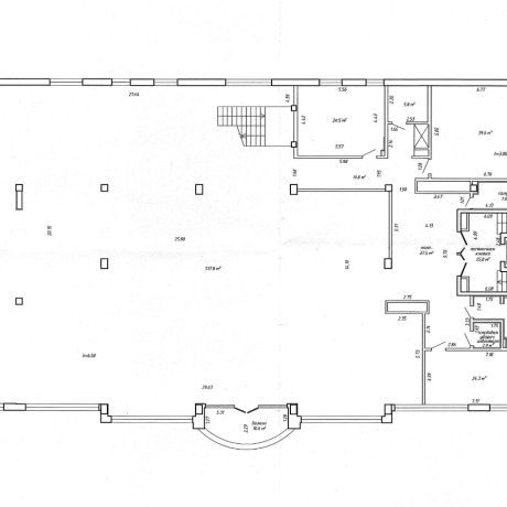
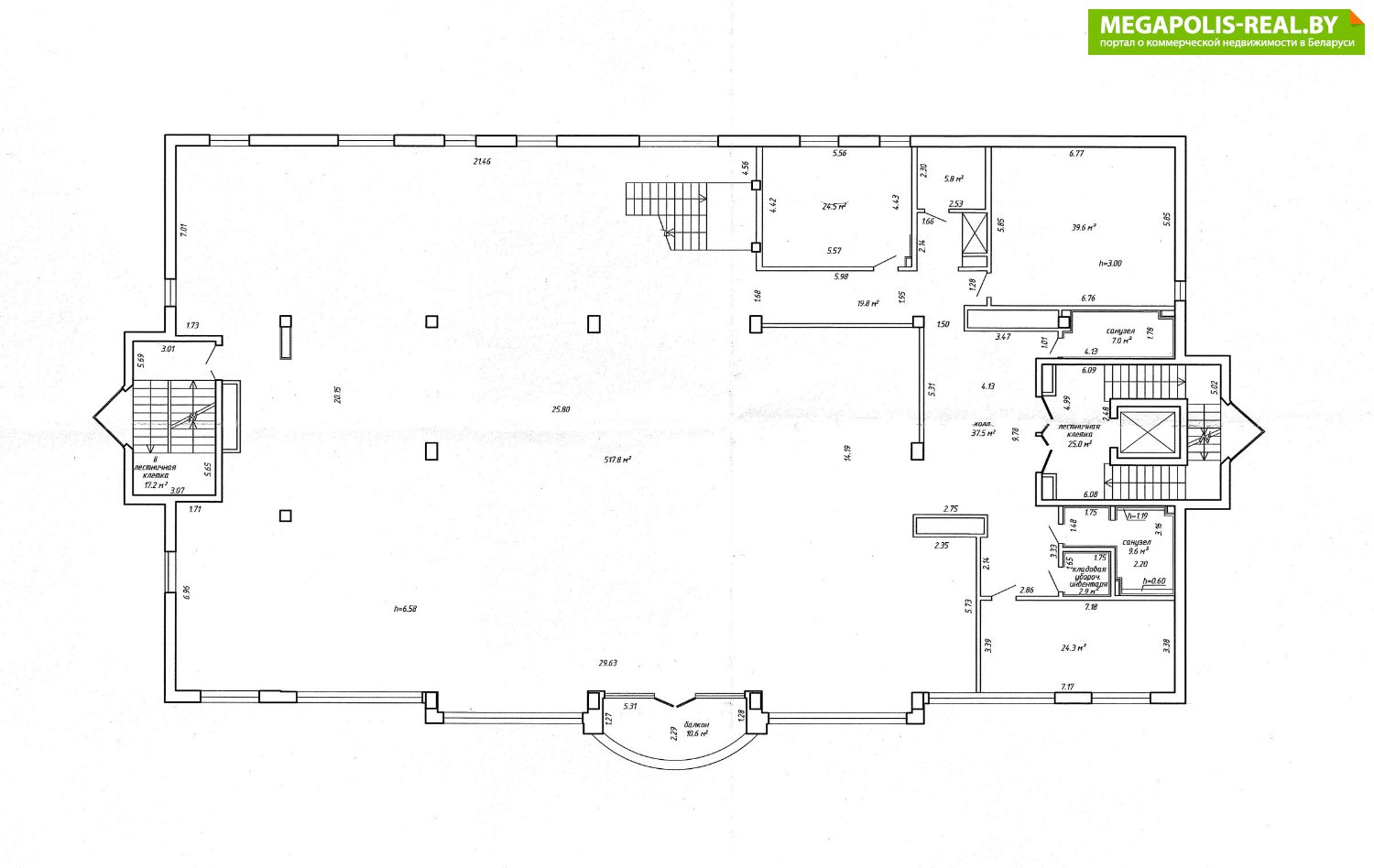
Помещение общей площадью 815,5 кв.м. подойдет для размещения офиса крупной компании либо организации развлекательной деятельности, открытия обучающего центра, галереи, творческой студии, а также для любых других сфер бизнеса.
Сочетание открытого пространства с высокими потолками (6,5 м) и отдельных кабинетов позволяет объединить административную и активную деятельность.
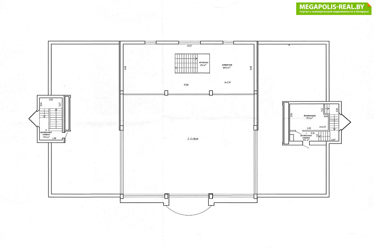
Второй уровень в виде антресоли создает дополнительную полезную площадь и возможности для реализации большего количества дизайнерских идей, а также решений по оптимизации пространства.
Для комфорта арендаторов предусмотрены:
- просторная зона ресепшн
- два раздельных санузла
- гардероб для сотрудников
- оборудованная кухня
- приточно-вытяжная система вентиляции
- система кондиционирования
- доступ 24/7
Выгодное месторасположение в престижном районе, большая плоскостная стоянка возле здания, быстрый выезд на основные крупные магистрали города и МКАД.
Если вас заинтересовало предложение, позвоните нам и мы ответим на все ваши вопросы!
Арендатор не оплачивает услуги риэлтерской организации!
- Год постройки: 2017
- Площадь: 815 м2
- Этаж: 3
- Ремонт: нормальный
- Интернет: скоростной интернет
- Регион: Минск и район
- Населенный пункт: Минск
- Район: Центральный
- Микрорайон: Ржавец
- Адрес: МЯСТРОВСКАЯ 26
- Контактное лицо: Отдел коммерческой недвижимости
- Телефон: +375 29 380-85-85
- E-mail: marielt.komm@mail.ru
- Телефон: +375 29 380-85-85
- Вид сделки: Предложение
- Цена: без НДС
- Форма собственности: Частная
- Стоимость коммунальных услуг
(за все помещение):В отопительный сезон: - руб.В неотопительный сезон: - руб.


в избранное



















