Аренда: Аренда офиса 820,9 м2 пер Ковалевской 60, Минск,
Предлагаем в долгосрочную аренду офисные помещения кабинетного типа в БЦ «Софит», Московский р-н!
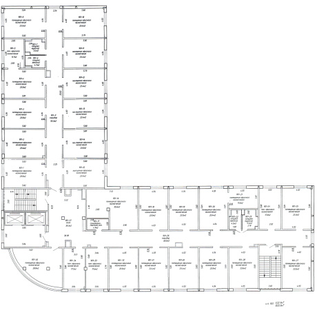
Сдается этаж целиком.
Есть помещение для кухни, 2 женских и 2 мужских санузла, фойе.
В здании 2 лифта, круглосуточная охрана, видеонаблюдение, есть парковка, велопарковка.
Вентиляция с естественным побуждением.
Отопление: посредством собственной газовой котельной.
Учет электроэнергии: индивидуальный.
Телефон и интернет в офисе: оптоволоконные линии.
На первом этаже здания находятся объекты, предназначенные для удовлетворения повседневных потребностей человека: кафе, магазин и др.
Арендатор НЕ оплачивает услуги агентства!
Звоните, договаривайтесь о просмотре, забирайте!
- Год постройки: 2018
- Площадь: 820 м2
- Этаж: 9
- Ремонт: нормальный
- Интернет: есть
- Парковка: да
- Близость к метро: Михалово
- Контактное лицо: Светлана
- Телефон: +375 29 380-85-85
- E-mail: marielt.komm@mail.ru
- Телефон: +375 29 380-85-85
- Вид сделки: Предложение
- Цена: без НДС
- Форма собственности: Частная
- Стоимость коммунальных услуг
(за все помещение):В отопительный сезон: - руб.В неотопительный сезон: - руб.


в избранное



































