Аренда: Аренда офисного блока на 19 этажа БЦ "Green City", Минск,
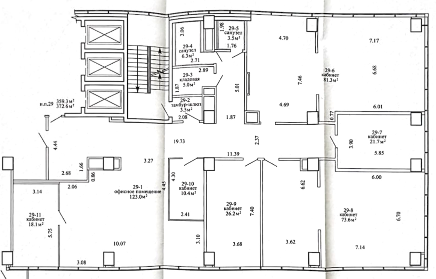
Офисный блок с отличным видом, площадью 372,6 м2. На 19 этаже БЦ "Green City". По адресу ул. Притыцкого, д. 156.
Преимущества:
- отличный ремонт;
- центральное водоснабжение и отопление;
- разведены электрические и слаботочные сети;
- система видеонаблюдения;
- пожарная сигнализация;
- охранная сигнализация;
- место для серверной;
- имеется кухня;
- интернет-оптоволокно;
- приточно-вытяжная система вентиляции;
- наличие санузла в помещении;
- 6 лифтов;
- плоскостная парковка у здания, многоуровневый паркинг;
- доступ 24/7.
Развитая инфрастуктура: в шаговой доступности расположены ст. метро Каменная горка, ТЦ "Грин Сити", остановки общественного транспорта.
Звоните, ответим на все Ваши вопросы.
- Год постройки: 2021
- Площадь: 372 м2
- Этаж: 19
- Ремонт: хороший
- Интернет: есть
- Охрана: да
- Парковка: да
- Количество телефонов: больше 5
- Режим работы здания: 24/7
- Близость к метро: Каменная Горка
- Питание: ресторан
- Бизнес-центр: Green City
- Класс бизнес-центра: A
- Регион: Минск и район
- Населенный пункт: Минск
- Район: Фрунзенский
- Микрорайон: Каменная горка
- Адрес: ПРИТЫЦКОГО 156
- Контактное лицо: Валерия
- Вид сделки: Предложение
- Цена: без НДС
- Форма собственности: Частная
- Тип договора: прямая аренда


в избранное















