Аренда: Аренда офисного блока в БЦ "Green Plaza", Минск,
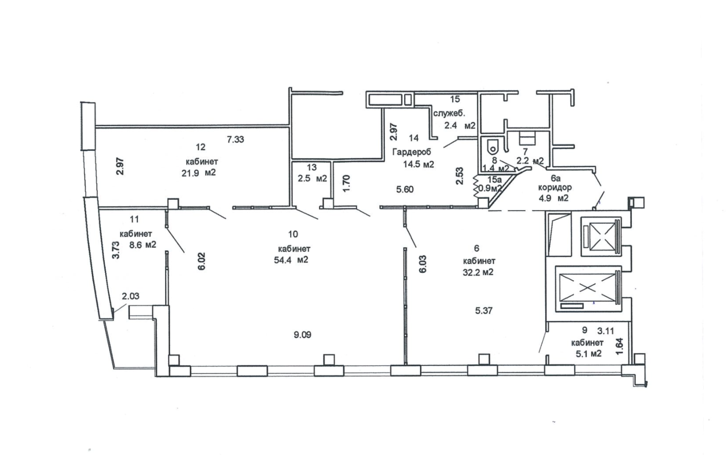
Полностью оборудованный офисный блок с мебелью, площадью 151 кв.м, в БЦ «Green Plaza» по адресу: г. Минск, ул. Бирюзова, 10А.
Зона ресепшен, два собственных санузла, оборудована кухня, комната приема пищи, серверный шкаф, разводка локальной сети, возможность разместить 20 рабочих мест, система кондиционирования, система видеонаблюдение, круглосуточный доступ в помещение, вблизи здания расположена парковка с большим количеством машино-мест.
Арендатор не оплачивает услуги агентства.
Звоните, ответим на все Ваши вопросы.
- Год постройки: 2008
- Площадь: 151 м2
- Этаж: 5
- Ремонт: Хороший
- Интернет: Есть
- Охрана: да
- Парковка: да
- Количество телефонов: Больше 5
- Режим работы здания: 24/7
- Близость к метро: Молодежная
- Питание: магазин
- Бизнес-центр: Green Plaza
- Класс бизнес-центра: B
- МФК: Green Plaza
- Регион: Минск и район
- Населенный пункт: Минск
- Район: Фрунзенский
- Микрорайон: Пушкина
- Адрес: Бирюзова 10 А
- Контактное лицо: Валерия
- Вид сделки: Предложение
- Цена: без НДС
- Форма собственности: Частная
- Тип договора: прямая аренда


в избранное























