Аренда: Аренда Сурганова 7А, Минск,
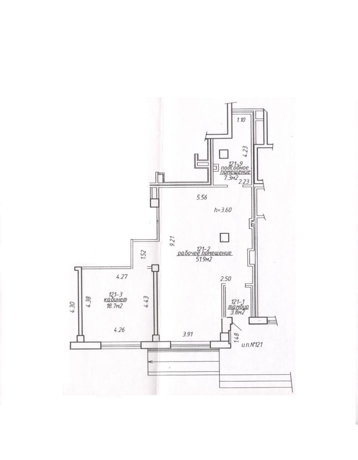
Изолированный административный блок на 1-ом этаже жилого дома общей площадью 109,2 кв.м., включает 2 просторные комнаты (все с естественным освещением), полезная офисная площадь 101 кв.м, подсобное помещения, санузел, комната приема пищи с кухней (вода, канализация), с отделкой (косметика 2024 г.), высокая степень инсоляции.
Коммуникации и инженерия:
Центральное отопление;
Пожарно-охранная сигнализация;
компьютерная сеть;
оптоволокно;
телефонные линии;
Доступ в офис возможен 24/7, свободная парковка у здания за шлагбаумом.
Рядом кафе (обеденное меню), дворец водного спорта, точки общественного питания.
Шаговая доступность до ст.м. "Академия наук", рядом остановки общественного транспорта.
- Площадь: 109 м2
- Этаж: 1
- Ремонт: Хороший
- Интернет: есть
- Парковка: да
- Режим работы здания: 24/7
- Близость к метро: Академия наук
- Питание: кафе
- Регион: Минск и район
- Населенный пункт: Минск
- Район: Первомайский
- Микрорайон: Академия наук
- Адрес: СУРГАНОВА 7А
- Контактное лицо: Ирина
- Телефон: +375 29 330-78-55

- E-mail: lsvirina2023@gmail.com
- Телефон: +375 29 330-78-55
- Вид сделки: Предложение
- Цена: без НДС
- Форма собственности: Частная
- Тип договора: прямая аренда
- Стоимость коммунальных услуг
(за все помещение):В отопительный сезон: 800 руб.В неотопительный сезон: 800 руб.


в избранное















