Аренда: Офис 125,8м2 (аренда) Ленина 50, Минск,
Просторный и светлый офис на 5 этаже БЦ «Ленина 50».
Здание центра удобно расположено между двумя ст.м. «Первомайская» и «Пролетарская»!
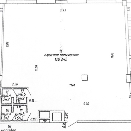
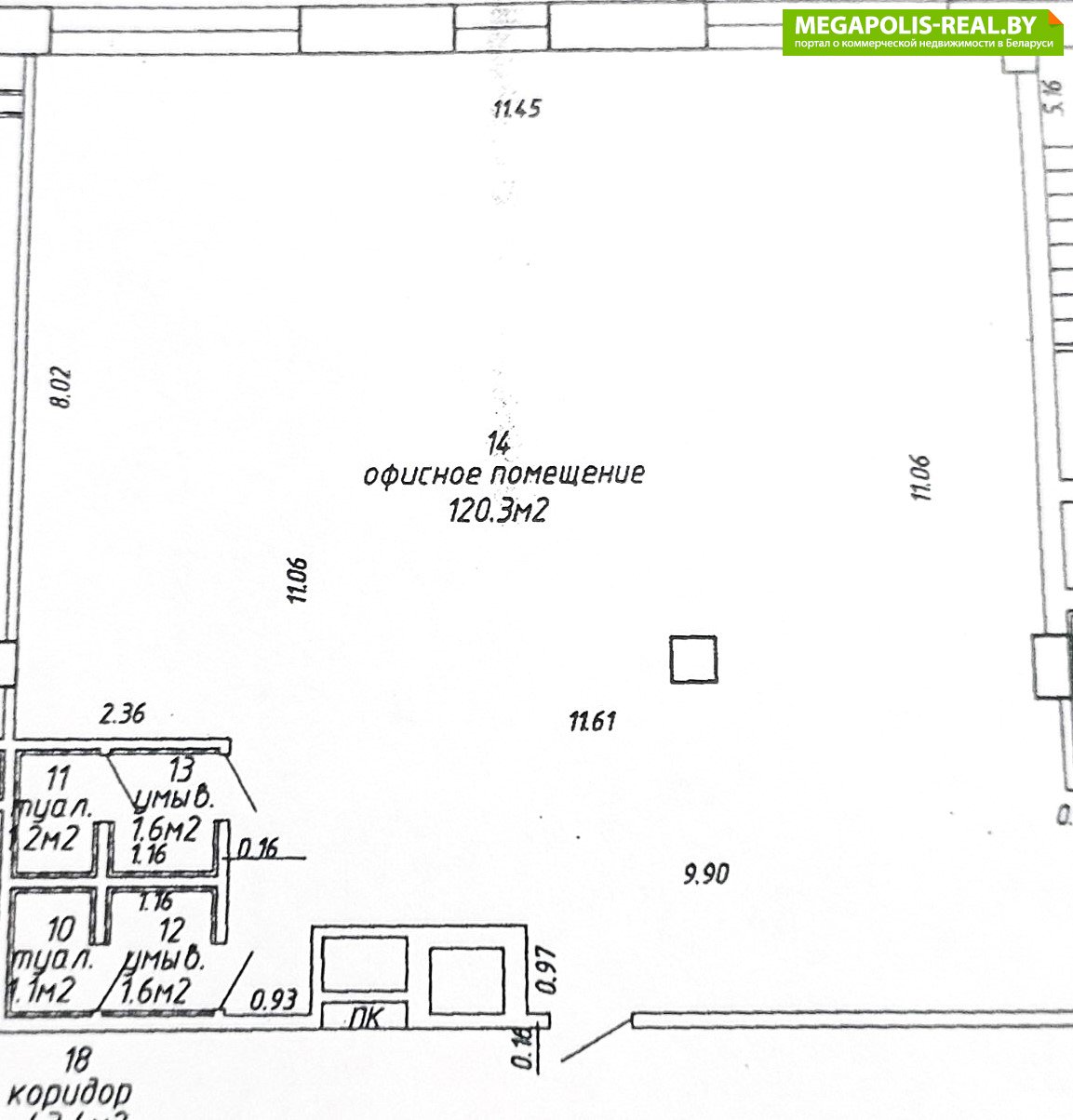
Офис оборудован двумя санузлами.
Помещение обновлено, выполнен легкий косметический ремонт, модернизировано освещение, установлены 2 кондиционера.
Вход в здание только по магнитным ключам.
Есть парковка.
Звоните, записывайтесь на просмотр и забирайте!
Арендатор НЕ оплачивает услуги агентства!
- Год постройки: 2016
- Площадь: 125 м2
- Этаж: 5
- Ремонт: хороший
- Интернет: есть
- Близость к метро: Пролетарская
- Бизнес-центр: Ленина, 50
- Регион: Минск и район
- Населенный пункт: Минск
- Район: Ленинский
- Микрорайон: Пролетарская
- Адрес: Ленина 50
- Контактное лицо: Светлана
- Телефон: +375 29 380-85-85
- E-mail: marielt.komm@mail.ru
- Телефон: +375 29 380-85-85
- Вид сделки: Предложение
- Цена: с НДС
- Форма собственности: Частная
- Стоимость коммунальных услуг
(за все помещение):В отопительный сезон: - руб.В неотопительный сезон: - руб.


в избранное






























