Аренда: Офис 75 - 149.9 м2(аренда) пр-т Независимости 44, Минск,
Аренда офисного блока в историческом здании «Вечерний Минск»
Адрес: г. Минск, пр-т Независимости, 44
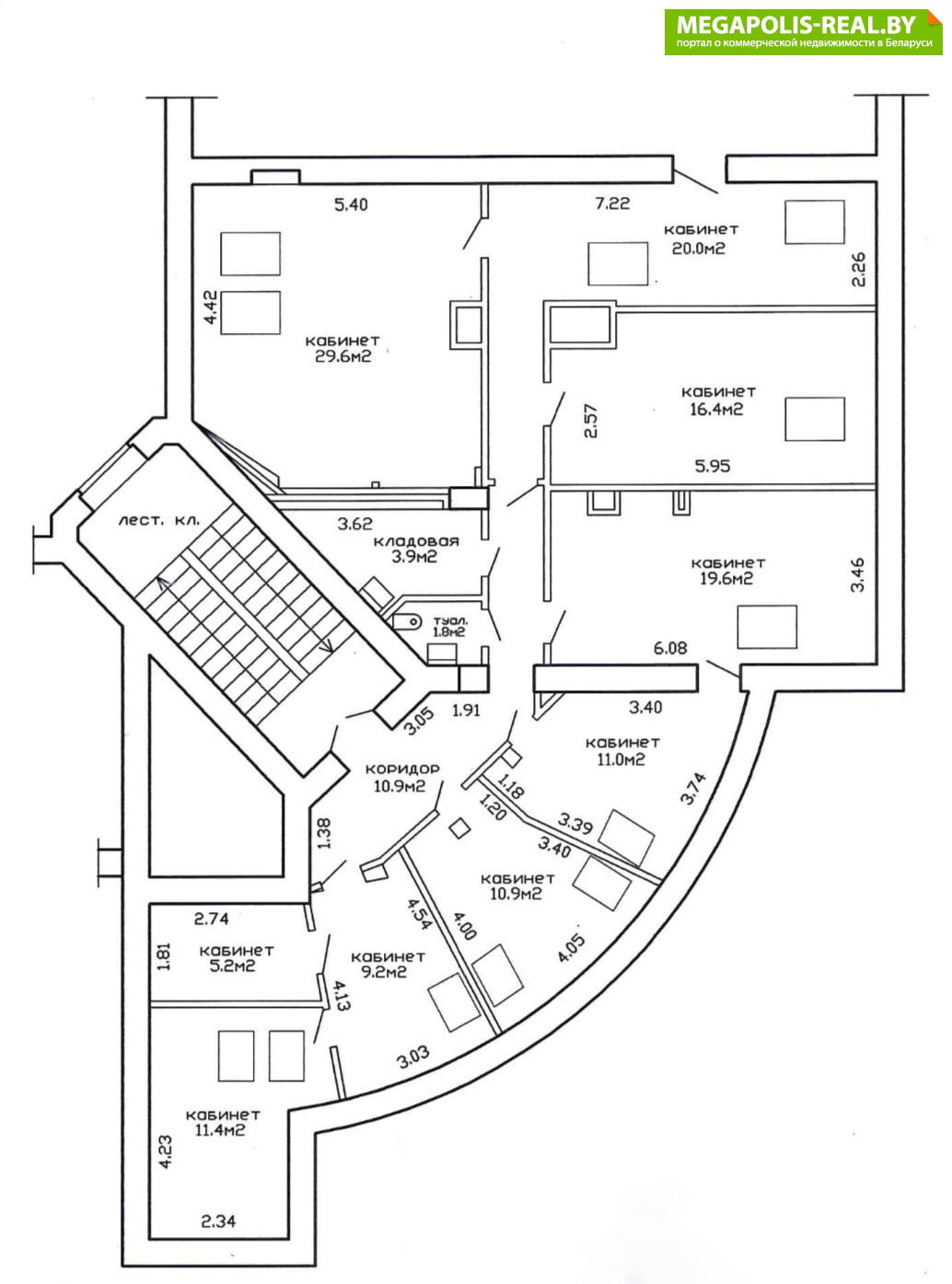
Площадь: 75 - 149,9 м2
- Статусная локация
- В 200 метрах находится ст.м. Площадь Победы - 6 остановок общественного транспорта
- Охрана на первом этаже, доступ по чип-карте
- Пожарная и охранная сигнализация
- Видеонаблюдение
- Ремонт
- Сдается с мебелью
- Собственный санузел
- Кухня, оборудованная посудомоечной машиной, микроволновой печью и чайником
- Принудительная вентиляция
- Кондиционеры
- Освещение, отопление, электроснабжение, вода
- Высокоскоростной интернет: оптоволокно, Wi- Fi
- Доступ 24/7
- Развитая инфраструктура: рядом кафе, банки, магазины
- Возможна установка вывески на фасаде здания
Помещение отлично подходит под офис, сферу услуг.
Возможна также сдача офисного блока площадью 95.1 или 245 м2.
Арендатор не оплачивает услуги агентства!
- Год постройки: 1955
- Площадь: 149 м2
- Этаж: 6
- Ремонт: Есть
- Интернет: Оптоволокно
- Охрана: да
- Парковка: да
- Режим работы здания: 24/7
- Близость к метро: Площадь Победы
- Питание: магазин
- Регион: Минск и район
- Населенный пункт: Минск
- Район: Советский
- Микрорайон: Гикало, Золотая Горка
- Адрес: НЕЗАВИСИМОСТИ 44
- Контактное лицо: Анна
- Телефон: +375 29 380-85-85
- E-mail: marielt.komm@mail.ru
- Телефон: +375 29 380-85-85
- Вид сделки: Предложение
- Цена: без НДС
- Форма собственности: Частная
- Стоимость коммунальных услуг
(за все помещение):В отопительный сезон: - руб.В неотопительный сезон: - руб.


в избранное



































