Аренда: Офис 220,8 м2 (аренда)д Большое Стиклево 40/1, Большое Стиклево,
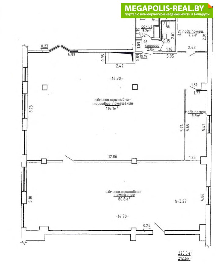
Помещение общей площадью 220,8 кв.м. расположено на 3-м этаже в оживленном многофункциональном комплексе и подойдет как для размещения офиса, так и для организации пункта торговли.
На объекте проведены коммуникации:
- электроснабжение
- отопление
- канализация
- водоснабжение
- вентиляция
- интернет
Удобный заезд для всех видов транспорта, асфальтированные подъездные пути, разворотная площадка для крупногабаритного транспорта, большая парковка, видеонаблюдение, доступ 24/7.
В непосредственной близости находится большое количество торговых объектов, складские комплексы, БЦ S.Union.
Есть возможность аренды торговых помещений на 1-м этаже:
- 203,8 кв.м.
- 264,4 кв.м.
Если вас заинтересовало предложение, позвоните нам и мы ответим на все ваши вопросы!
Арендатор не оплачивает услуги риэлтерской организации!
- Год постройки: 2013
- Площадь: 220 м2
- Этаж: 3
- Ремонт: Хороший
- Интернет: скоростной интернет
- Близость к метро: Могилёвская
- Питание: магазин
- МФК: Новодворский с/с 40/1, Большое Стиклево
- Регион: Минск и район
- Населенный пункт: Большое Стиклево
- Район: Минский
- Микрорайон: Большое Стиклево
- Адрес: Большое Стиклево 40/1
- Контактное лицо: Наталья
- Телефон: +375 29 380-85-85
- E-mail: marielt.komm@mail.ru
- Телефон: +375 29 380-85-85
- Вид сделки: Предложение
- Цена: с НДС
- Форма собственности: Частная
- Стоимость коммунальных услуг
(за все помещение):В отопительный сезон: - руб.В неотопительный сезон: - руб.


в избранное


















































