Аренда: Офис в аренду, Минск,
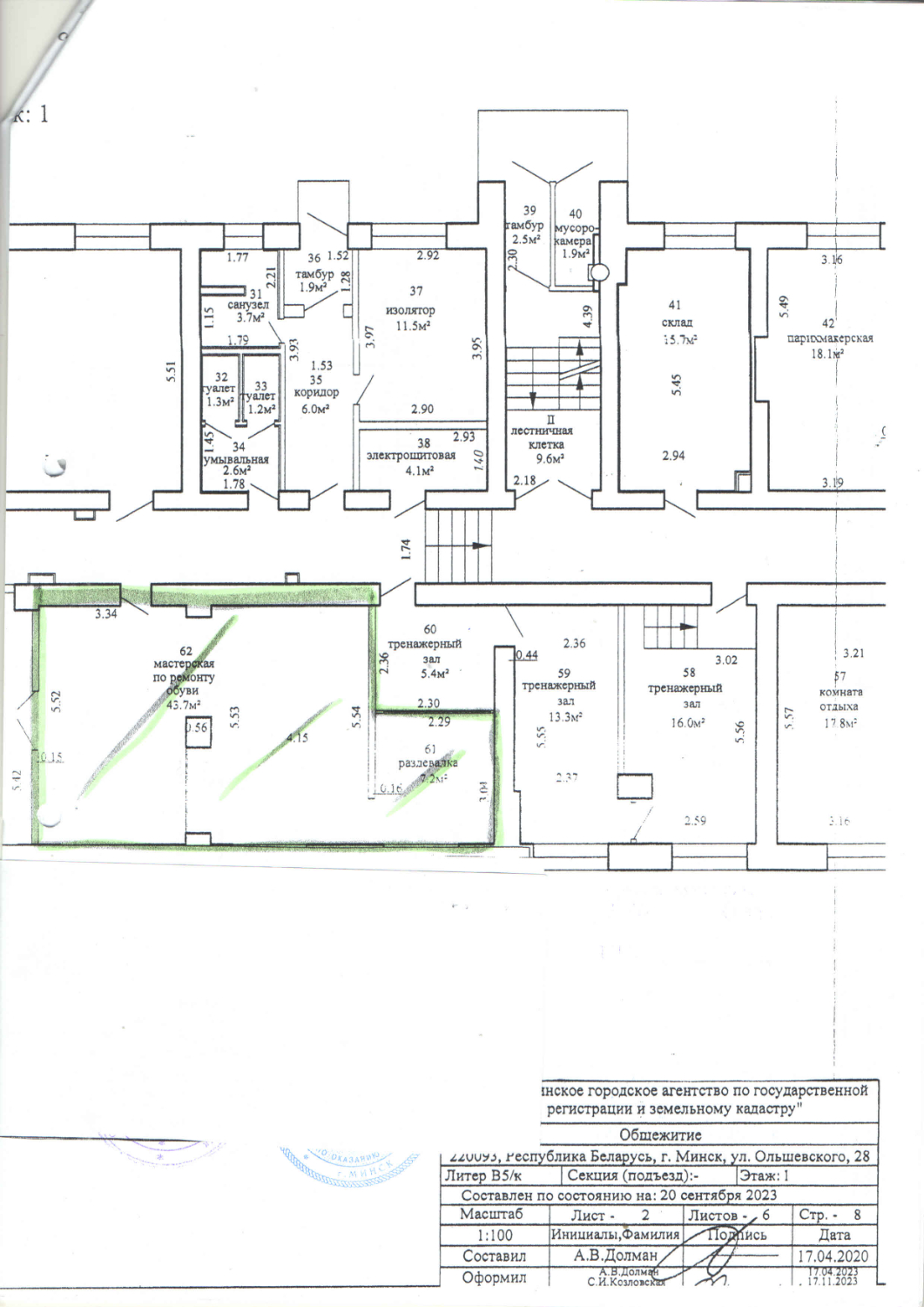
Сдаются в аренду встроенные помещения общей площадью 50,9 м2, размещены на 1-ом этаже здания общежития, вход в арендуемые помещения распологается сразу после центрального входа в здание. Во встроенных помещениях имеется отопление, естественное освещение, вода, пожарная сигнализация, электричество, требуется косметический ремонт. Юридический адрес, государственная собственность, оживленное место, подъездные пути, охрана, объект находится под круглосуточным видеонаблюдением.Индивидуальный подход к каждому клиенту.
- Год постройки: 1973
- Площадь: 50 м2
- Этаж: 1
- Ремонт: нет
- Интернет: есть
- Охрана: да
- Парковка: нет
- Режим работы здания: круглосуточно
- Близость к метро: Пушкинская
- Питание: магазин
- Регион: Минск и район
- Населенный пункт: Минск
- Район: Фрунзенский
- Микрорайон: Масюковщина
- Направление: Минск
- Адрес: ОЛЬШЕВСКОГО 28
- Собственник, юр. лицо:
- Контактное лицо: Ольга
- Телефон: +375 44 532-04-94
- E-mail: anijku@oaomapid.by
- Телефон: +375 44 532-04-94
- Вид сделки: Предложение
- Цена: с НДС
- Форма собственности: Государственная
- Стоимость коммунальных услуг
(за все помещение):В отопительный сезон: 130 руб.В неотопительный сезон: 100 руб.


в избранное






















