код 38352A
Аренда: Офис в Бизнес-центре ''Роял-Плаза'', 265.90 м², Минск,
Описание объекта
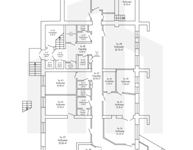
Офис в аренду в бизнес-центре Роял Плаза. Площадь 265,9 м2 Адрес: пр. Победителей 7а Площадь: 265,9 м2 Этаж: 5
Звоните
Параметры объекта
- Площадь: 265 м2
- Этаж: 5
- Интернет: есть
- Охрана: да
- Парковка: да
- Близость к метро: Немига
- Питание: ресторан
Местоположение
- Бизнес-центр: Роял Плаза
- Класс бизнес-центра: A
- Регион: Минск и район
- Населенный пункт: Минск
- Район: Центральный
- Микрорайон: Немига
- Адрес: ПОБЕДИТЕЛЕЙ 7а
Контактная информация
- Собственник, юр. лицо: ООО «РеалтЭксперт»
- Контактное лицо: Андрей
- Телефон: +375 29 328-04-02
- E-mail: arendamf@gmail.com
- Телефон: +375 29 328-04-02
16 165 BYN
5 615 $
4 770 €
61 BYN/M2
21,19 $/M2
18,00 €/M2
- Вид сделки: Предложение
- Цена: с НДС
- Форма собственности: Частная
- Тип договора: прямая аренда
- Стоимость коммунальных услуг
(за все помещение):В отопительный сезон: 1 руб.В неотопительный сезон: 1 руб.
Поделиться в соцсетях


в избранное



























