Аренда: Офисный блок (355 м²) с бесплатной закрытой парковкой (метро Аэродромная и Ковальская Слобода), Минск,
Комфортное пространство для вашей команды, где не нужно ломать голову над парковкой.
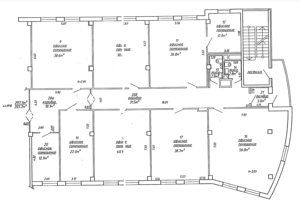
Сдается в долгосрочную аренду изолированный офисный блок с хорошим ремонтом и продуманной планировкой на 5-м этаже современного бизнес-центра (ул. Либаво-Роменская, 23).
Главный бонус — Парковка: Вам предоставляется бесплатная закрытая парковка под шлагбаумом. Свободные места на ней есть всегда! Ваши сотрудники и клиенты больше не будут тратить время на поиск места для авто.
Офисное пространство и планировка:
Площадь 355 м2: Включает 7 светлых рабочих кабинетов разного формата.
Мебель: Блок сдается без мебели на рабочих местах (фото с мебелью представлены для понимания объемов помещения). При этом в офисе остается: оборудованная кухня (с техникой, барной стойкой и стульями), а также стойка-ресепшен при входе в блок.
Инфраструктура: Два аккуратных санузла прямо в блоке и просторный открытый балкон.
Техническое оснащение и безопасность:
Круглосуточный доступ 24/7 — работайте в удобном для вашего бизнеса графике.
Круглосуточная охрана и видеонаблюдение 24/7, система контроля доступа (вход только по чип-картам).
Современная система кондиционирования и приточно-вытяжной вентиляции.
Скоростной интернет (оптоволокно) и разведенная компьютерная сеть.
Здание и блок оборудованы элементами безбарьерной среды.
Инфраструктура БЦ:
Презентабельное лобби на первом этаже и 3 лифта.
Кофейня на первом этаже (возможна доставка еды и кофе прямо в офис). В 300 метрах находится продуктовый магазин.
Условия аренды:
Мы нацелены на надежное сотрудничество: рассматриваем арендаторов на максимально долгий срок (минимальный договор аренды — от 1 года).
Низкие коммунальные и эксплуатационные платежи.
Предоставляем юридический адрес.
Обеспечительный платеж (засчитывается в счет оплаты последнего месяца аренды).
Арендные каникулы: Предоставляем до 2 недель на комфортный переезд и обустройство вашего нового офиса!
- Год постройки: 2009
- Площадь: 355 м2
- Этаж: 5
- Ремонт: Хороший
- Интернет: есть
- Охрана: да
- Парковка: да
- Количество телефонов: 5
- Режим работы здания: 24/7
- Близость к метро: Аэродромная
- Питание: кафе
- Бизнес-центр: Hi-tech
- Класс бизнес-центра: B
- Регион: Минск и район
- Населенный пункт: Минск
- Район: Ленинский
- Микрорайон: Маяковского
- Адрес: Либаво-Роменская 23
- Собственник, физ. лицо
- Контактное лицо: Алексей
- Телефон: +375 29 333-35-60
- E-mail: maab2b@gmail.com
- Телефон: +375 29 333-35-60
- Вид сделки: Предложение
- Цена: без НДС
- Форма собственности: Частная
- Тип договора: прямая аренда
- Стоимость коммунальных услуг
(за все помещение):В отопительный сезон: 2,5 $/м2 руб.В неотопительный сезон: 2 $/м2 руб.


в избранное





























