Аренда: Офисный блок 412 м², Фрунзенский район, ул. Ольшевского , быстрый выезд на Победителей, метро Пушкинская, высокий 10 этаж, Минск,
Сдаётся офисное помещение площадью 412 м² в Фрунзенском районе, на ул. Ольшевского, в бизнес-центре класса B+.
Офис расположен на высоком 10 этаже и имеет панорамный вид на город.
Отличная транспортная доступность: быстрый выезд на ул. Победителей и ул. Тимирязева, метро Пушкинская — в пешей доступности.
Имеются закреплённые парковочные места.
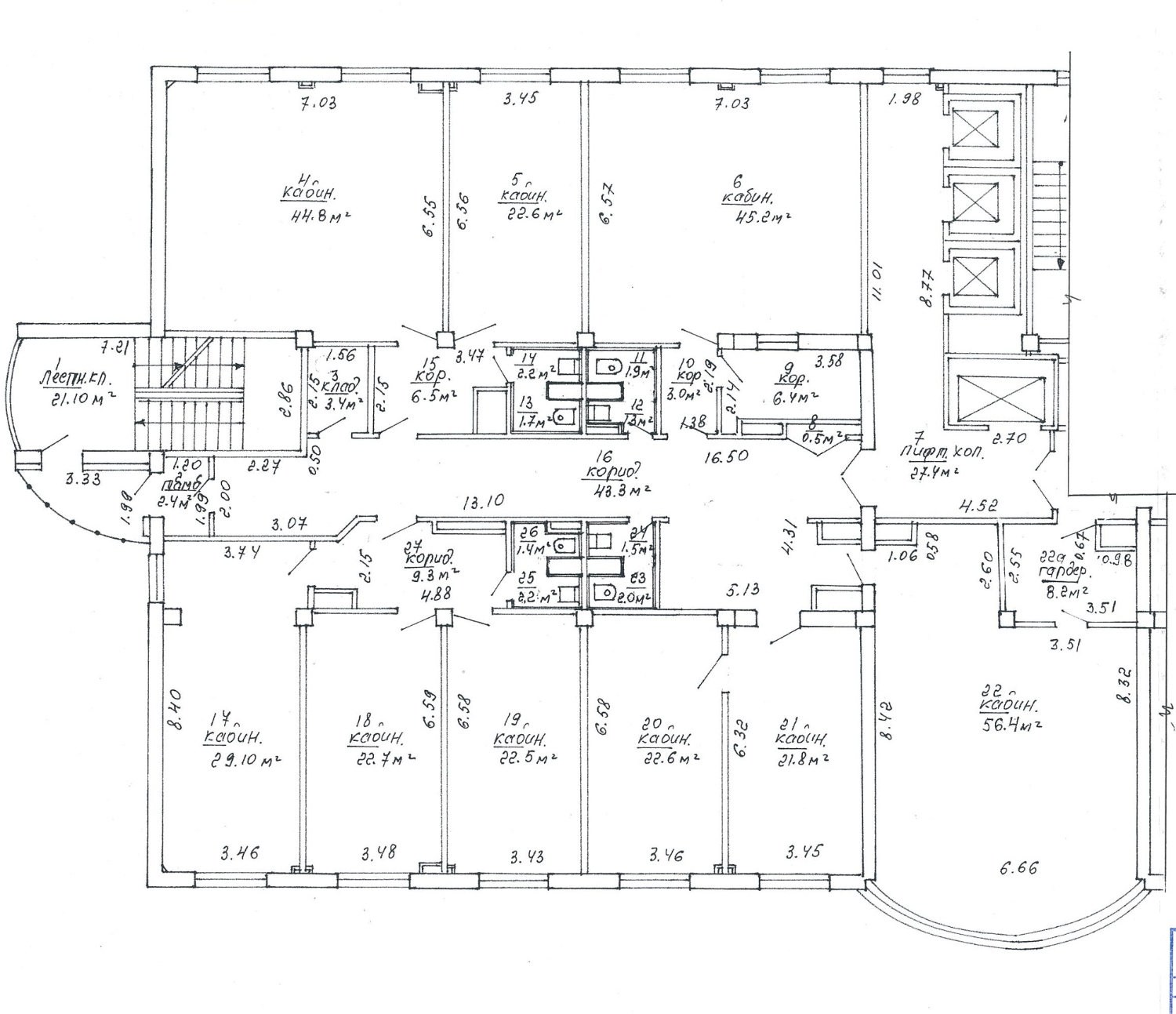
Планировка — кабинетный офис
Крупные кабинеты:
- 44.8 м²
- 45.2 м²
- 56.4 м²
- 29.1 м²
Средние кабинеты:
- 22.6 м²
- 22.7 м²
- 22.5 м²
- 22.6 м²
- 21.8 m²
Дополнительные помещения:
- кабинеты 6–15 м²
- архивы и подсобные комнаты
- несколько санузлов
- широкие коридоры
Особенности офисного пространства
- Высокий 10 этаж
- Панорамный вид на город
- Светлая кабинетная планировка
- Окна на две стороны здания
- Удобное внутренне пространство
- Лифтовой узел + две лестничные клетки
- Бизнес-центр класса B+
- Имеются закреплённые парковочные места
- Год постройки: 2014
- Площадь: 412 м2
- Этаж: 10
- Ремонт: с отделкой
- Интернет: оптоволокно
- Охрана: да
- Парковка: да
- Количество телефонов: по требованию
- Режим работы здания: 24/7
- Близость к метро: Пушкинская
- Питание: кафе
- Бизнес-центр: Ольшевского, 22
- Класс бизнес-центра: B
- Регион: Минск и район
- Населенный пункт: Минск
- Район: Фрунзенский
- Микрорайон: Раковское Шоссе
- Адрес: ОЛЬШЕВСКОГО 22
- Контактное лицо: Кристина
- Телефон: +375 29 627-87-86

- E-mail: krupatina.k@mail.ru
- Телефон: +375 29 627-87-86
- Вид сделки: Предложение
- Цена: без НДС
- Форма собственности: Частная
- Тип договора: прямая аренда
- Стоимость коммунальных услуг
(за все помещение):В отопительный сезон: счетчик руб.В неотопительный сезон: счетчик руб.


в избранное


























