Аренда: Сдается офисное помещение по адресу г. Минск, Интернациональная ул., д. 3, г. Минск,
Коммерческое помещение премиум-класса на улице Интернациональная.
Уникальное предложение для репрезентативного бизнеса в сердце Минска. Помещение расположено в историческом центре города, на главной пешеходной артерии Верхнего города, где сохранилась уникальная атмосфера и архитектура XVIII-XIX веков. Ежедневный поток туристов и местных жителей создает идеальные условия для бизнеса.
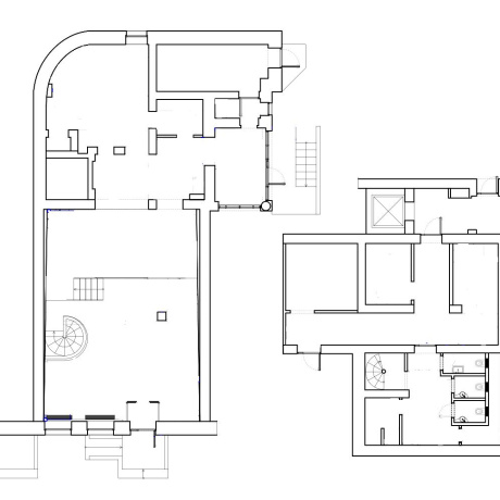
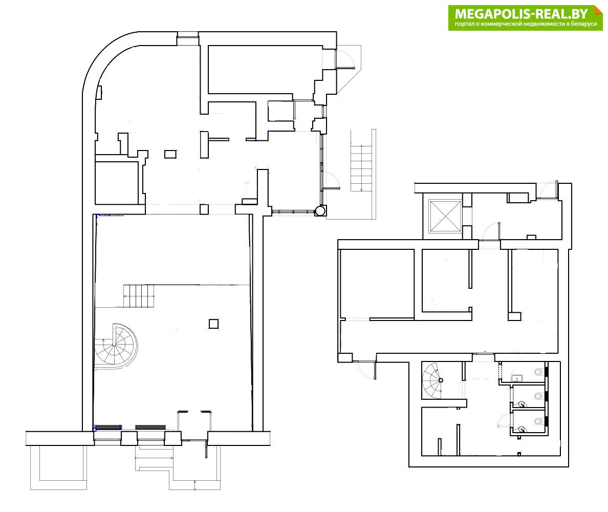
Архитектурные особенностиПространство предлагает нестандартные планировочные решения с высотой потолков 6 метров, что открывает широкие возможности для реализации смелых дизайнерских концепций. Дополнительным преимуществом является антресольная часть, эффективно увеличивающая полезную площадь.
Транспортная доступность и входыОбъект имеет два независимых входа: парадный выход на пешеходную улицу Интернациональную и дополнительный доступ на стилобатную часть. Такая планировка обеспечивает удобную логистику и возможность организации летней террасы.
Технические характеристикиПомещение оснащено неограниченными электрическими мощностями и развитой системой вентиляции, что позволяет размещать любые форматы бизнеса без технических ограничений. Санузлы изолированы в отдельный блок.
ПланировкаОбщая площадь составляет 200 м2, включая 170 м2 на первом этаже и 30 м2 в цокольной части. Цокольный этаж идеально подходит для организации подсобных помещений, гардеробной или технических зон.
Бизнес-перспективыЛокация оптимальна для премиальных ресторанов, баров, шоу-румов, галерей или флагманских ритейл-проектов. Дополнительным преимуществом является возможность организации летней террасы на улице Интернациональной и стилобатной части, а также опции по размещению парковочных мест.
Финансовые условияДля запуска проекта предусмотрены арендные каникулы на период проведения ремонтных работ. Собственник проявляет гибкий подход и готов рассматривать варианты участия в адаптации помещения под конкретный проект.
Это возможность создать бизнес с уникальной идентичностью в месте с богатой историей и стабильным клиентским потоком. Помещение сочетает современные технические возможности с аутентичной атмосферой самого престижного района Минска.
Лицензия: 02240/446 МЮ РБ, 11.07.2022
- Площадь: 177 м2
- Этаж: 1
- Интернет: есть
- Режим работы здания: 24/7
- Близость к метро: Немига
- Питание: магазин
- Регион: Минск и район
- Населенный пункт: г. Минск
- Район: Центральный
- Микрорайон: Верхний город
- Адрес: Интернациональная ул. д. 3
- Контактное лицо: Фаттория
- Телефон: +375 25 532-84-21
- Телефон: +375 25 532-84-21
- Вид сделки: Предложение


в избранное










































