Продажа / Покупка: Продается офисное помещение по адресу Новоселье, Промысловая ул., , Новоселье,
Продается современное деревообрабатывающее производство с земельным участком 1,3 га
Минский район, д. Новоселье 19 км от МКАД
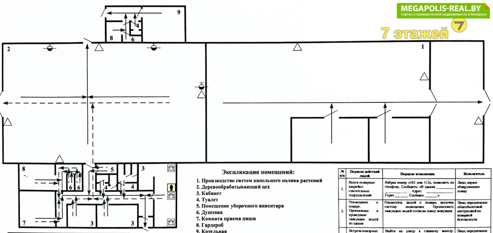
Предлагается к продаже полностью готовый производственный комплекс с качественной инфраструктурой и современным оборудованием, офисом, топочной с двумя котлами, с трансформаторной подстанцией мощностью 250кВт.
Производственная часть:
• Реконструированный цех — 427,5 м²
• Дополнительный цех — 542,5 м²
• Высота потолков — 5,52 м
Административно-бытовой блок:
• Общая площадь — 225,3 м², высота потолков - 2,75м
• 3 кабинета
• Столовая
• Душевая и раздевалка
• 2 санузла
• Выполнен качественный современный ремонт
Оборудование:
• Европейского и американского производства: Supercut80, Jet, Altesa, Altendorf WA6, Rojek, Centauro,Biesse, Ardesiа, Istra-A
• Полностью готово к эксплуатации
Земельный участок:
• 1,3 га
• Перспективы расширения и развития
Преимущества:
Готовый бизнес без дополнительных вложений
Отличное техническое состояние
Продуманная инфраструктура
Перспективный инвестиционный объект
Подробности по телефону. Организуем показ в удобное время.
Смотрите еще больше в нашем Telegram канале @an7_estate
ООО "7 этажей", УНП 192361483, лицензия № 02240/283 от 14.11.2014г., договор на оказание риэлтерских услуг 218/3 от 31.03.2026г.
- Площадь: 1262 м2
- Регион: Минск и район
- Населенный пункт: Новоселье
- Адрес: Промысловая ул.
- Агентство: АН "7 этажей"
- УНП: 192361483
- Контактное лицо: Риэлтер
- Телефон: +375 44 730-70-70
- E-mail: adv@an7.by
- Телефон: +375 44 730-70-70
- Вид сделки: Предложение


в избранное



















