Аренда: Сдается офисное помещение по адресу г. Минск, Платонова ул., д. 1 к. Б, г. Минск,
Описание
Ищете идеальное место для своего бизнеса? У нас есть отличное предложение!
Отличная транспортная доступность и наличие парковки для сотрудников и клиентов.
В непосредственной близости кафе, рестораны, банки и другие необходимые услуги.
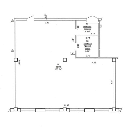
Офисное помещение, готовое к работе.
Хороший ремонт ,открытое пространство, комната отдыха и переговорная.
Не упустите возможность развивать свой бизнес в престижном районе города!
На период с 7 по 19 августа связываться по мессенджерам whatsp, telegram, viber.
Лицензия: 02240/446 МЮ РБ, 11.07.2022
- Площадь: 117 м2
- Регион: Минск и район
- Населенный пункт: г. Минск
- Микрорайон: Козлова, Захарова
- Адрес: Платонова ул. д. 1 к. Б
- Контактное лицо: Дмитрий
- Телефон: +375 29 653-98-53
- Телефон: +375 29 653-98-53
- Вид сделки: Предложение


в избранное


































































































