Аренда: Сдается офисное помещение по адресу Минск, Смоленская ул., 25, Минск,
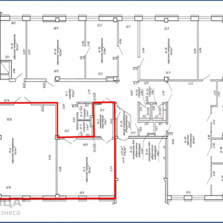
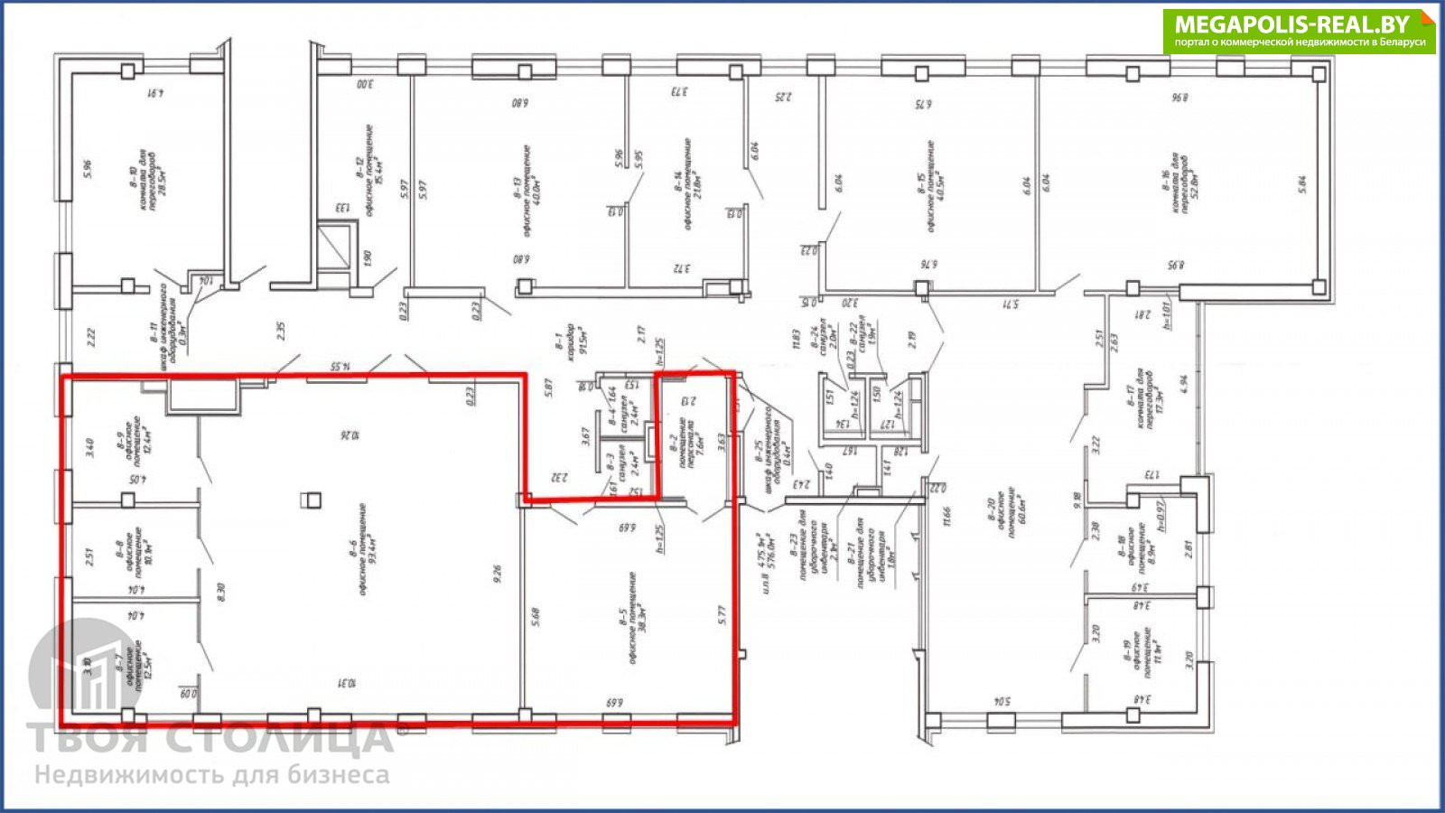
Аренда офисного блока площадью 174.3кв.м.Все помещения с естественным освещением, кухня, подсобные помещения, 2 блока санузлов на этаже.Коммуникации и инженерия:принудительная приточно-вытяжная вентиляция;центральное отопление;пожарно-охранная сигнализация;видеонаблюдение;компьютерная сеть;оптоволокно;кондиционирование;бесшумные лифты марки KONE.Собственная эксплуатирующая организация, все вопросы по обслуживанию помещения и здания решаются оперативно, круглосуточный доступ в здание, служба администратора на 1-ом этаже.Кофе-поинт на первом этаже здания, рядом точки общественного питания.Шаговая доступность от ст. м. "Пролетарская", рядом остановки общественного транспорта.Арендатор не оплачивает услуги агентства.
- Площадь: 174 м2
- Ремонт: есть
- Интернет: есть
- Близость к метро: Пролетарская
- Бизнес-центр: Смоленская 25
- Класс бизнес-центра: B
- Регион: Минск и район
- Населенный пункт: Минск
- Район: Партизанский
- Микрорайон: Пулихова
- Адрес: Смоленская ул. 25
- Контактное лицо: Антон Алейников
- Телефон: 8-017 336-77-72
- E-mail: aleinikov@t-s.by
- Телефон: 8-017 336-77-72
- Вид сделки: Предложение
- Тип договора: прямая аренда


в избранное








