Продажа / Покупка: Офис 299,3м2(продажа) ул Мясникова 40, Минск,
Основные характеристики:
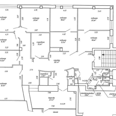
- Кабинетный тип, идеально подходит для организации рабочих мест.
- Уникальное преимущество — возможность использовать террасу для отдыха или деловых встреч.
- В шаговой доступности остановка общественного транспорта и станция метро "Площадь Богушевича". Расположение в центре гарантирует большую проходимость и видимость для бизнеса.
- Офис уже сдается в аренду, что обеспечивает стабильный доход с момента покупки.
- Помещение может быть адаптировано под различные виды деятельности.
Покупатель не оплачивает услуги агентства!
- Площадь: 299 м2
- Этаж: 5
- Ремонт: Есть
- Парковка: да
- Близость к метро: Площадь Франтишка Богушевича
- Питание: магазин
- Бизнес-центр: Мясникова 40
- Регион: Минск и район
- Населенный пункт: Минск
- Район: Центральный
- Микрорайон: Клары Цеткин
- Адрес: Мясникова 40
- Контактное лицо: Юлия Макрицкая
- Телефон: +375 29 380-85-85
- E-mail: marielt.komm@mail.ru
- Телефон: +375 29 380-85-85
- Вид сделки: Предложение
- Цена: с НДС
- Форма собственности: Частная
- Стоимость коммунальных услуг
(за все помещение):В отопительный сезон: - руб.В неотопительный сезон: - руб.


в избранное

















































































