Продажа / Покупка: Офис 659,4 м2 (продажа) д Большое Стиклево 83, Большое Стиклево,
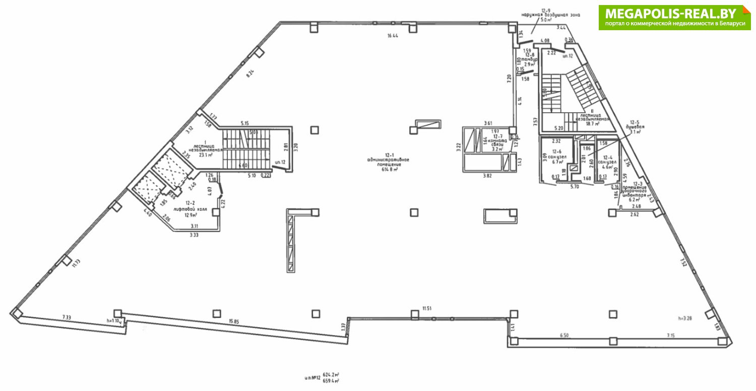
Офис в новом Бизнес-центре «Team Building»! Офис «Open Space» формата, общей площадью - 659,4 м2. Располагается на 10-м этаже в новом Бизнес-центре «Team Building», по адресу Минская обл., Минский р-н, Новодворский с/с, 83-12, район д. Большое Стиклево. Отличная транспортная доступность, всего 10 минут от станции метро «Могилевская». Локация с отличным авто сообщением, удобными подъездными путями и большой парковкой возле здания. Панорамное остекление, стеклопакеты «Alutech» с повышенной шумоизоляцией и возможностью открытия в режиме проветривания. 2 санузла, душевая, серверная комната. • Метро «Могилевская»;• Отличный ремонт;• Высокие потолки – 3,5м;• Много естественного света;• Впечатляющий вид из окна;• Доступ в здание 24/7;• Подъездные пути/парковка; Коммуникации: приточно-вытяжная вентиляция; круглосуточная система охраны и видеонаблюдения всего здания; оптоволокно от нескольких интернет-провайдеров. Покупатель не платит комиссию агентству!Готовы рассмотреть Ваши предложения.Звоните!
- Площадь: 659 м2
- Этаж: 10
- Ремонт: Хороший
- Интернет: есть
- Парковка: да
- Режим работы здания: 24/7
- Питание: магазин
- Бизнес-центр: TEAM building
- Класс бизнес-центра: B+
- Регион: Минск и район
- Населенный пункт: Большое Стиклево
- Район: Минский
- Микрорайон: Большое Стиклево
- Адрес: - 83
- Контактное лицо: Иван
- Телефон: +375 29 380-85-85
- E-mail: marielt.komm@mail.ru
- Телефон: +375 29 380-85-85
- Вид сделки: Предложение
- Цена: с НДС
- Форма собственности: Частная
- Стоимость коммунальных услуг
(за все помещение):В отопительный сезон: - руб.В неотопительный сезон: - руб.


в избранное



















































