Продажа / Покупка: Продается офисное помещение по адресу г. Минск, Цеткин ул., д. 24, г. Минск,
Эксклюзивное предложение: продаётся престижный офис в бизнес-центре «Имперский»
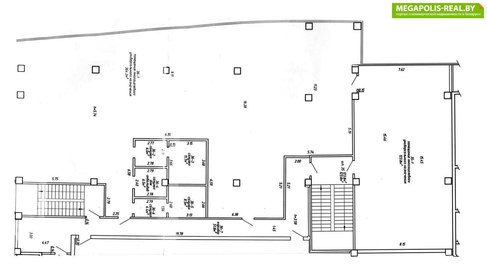
Ваш бизнес заслуживает самого лучшего! Предлагаем к продаже уникальное административное помещение площадью 581 м2 в многофункциональном комплексе «Имперский», расположенном по адресу: ул. К. Цеткин, 24. Это идеальное решение для компаний, стремящихся к развитию в престижном и современном пространстве.
Почему это выгодное предложение?
Престижное расположение:
• Бизнес-центр «Имперский» находится в центральной части Минска, что обеспечивает отличную транспортную доступность и престижный адрес для вашего бизнеса.
• В шаговой доступности три станции метро, что делает офис легко доступным для сотрудников и клиентов.
Современное пространство:
• Площадь помещения: 581 м2 с возможностью расширения полезной площади на 250 м2 за счёт уникальной конструкции.
• Панорамные окна и высота потолков 5 метров наполняют пространство светом и простором, создавая идеальные условия для работы и творчества.
• Свободная планировка (openspace) позволяет организовать пространство по вашему усмотрению.
Комфорт и безопасность:
• Отдельный вход в здание и доступ 24/7 для максимального удобства.
• Собственный санузел и высота потолков 4 м обеспечивают комфорт для сотрудников и посетителей.
• Остекление в пол создаёт атмосферу открытости и современности.
Инфраструктура и коммуникации:
• Отопление, электричество, вода и канализация — все коммуникации подключены и готовы к использованию.
• Оптоволокно для высокоскоростного интернета.
• Проекты на кондиционирование и вентиляцию, кондиционеры в наличии.
• Собственная вентиляционная установка на крыше для поддержания оптимального микроклимата.
• Лифты фирмы Otis и презентабельный холл подчеркнут статус вашего бизнеса.
Преимущества здания:
• Современные коммуникации и высокий уровень безопасности с контролем доступа.
• Фасад здания сохраняет тепло зимой и блокирует УФ-излучение летом.
• Подземный и наземный паркинг для удобства сотрудников и клиентов.
• Физкультурно-оздоровительный центр с бассейном, саунами и тренажёрным залом в здании бизнес-центра.
• Товарищество собственников обеспечивает высокий уровень обслуживания и поддержки.
Условия продажи:
• Цена: 2000евр. за м2 (без НДС).
• Гибкие условия сделки и возможность оформления в короткие сроки.
Для кого это предложение?
Этот офис станет идеальным решением для:
• Крупных компаний, желающих разместиться в престижном бизнес-центре.
• Стартапов и инновационных проектов, которым важно современное пространство.
• Медицинских и обр
- Площадь: 581 м2
- Ремонт: отделка
- Парковка: да
- Режим работы здания: 24/7
- Близость к метро: Фрунзенская
- Питание: кафе
- Контактное лицо: Фаттория
- Телефон: +375 25 532-84-21
- Телефон: +375 25 532-84-21
- Вид сделки: Предложение


в избранное



































