Продажа / Покупка: Продается офисное помещение по адресу Минск, Тимирязева ул., 121/4, Минск,
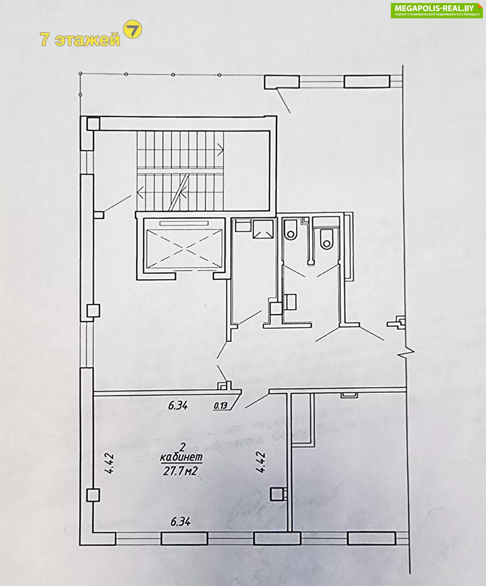
Продается офисное помещение 27,7 м2, расположенное на 6-ом этаже, 6-ти этажного здания ул. Тимирязева, 121/4.
Офис оборудован мебелью, стены утеплены теплогидроизоляцией в отличии от всего здания, установлен кондиционер. Санузел в корриде, доступ 24\7.
Отличное месторасположение, большая парковка со свободными местами, рядом остановка общественного транспорта.
Прекрасная локация для бизнеса.
Смотрите еще больше в нашем Telegram канале @an7_estate
ООО "7 этажей", УНП 192361483, лицензия № 02240/283 от 14.11.2014г., договор на оказание риэлтерских услуг 1065/3 от 07.05.2024г.
Возможное назначение: Офис, Помещение
- Площадь: 28 м2
- Регион: Минск и район
- Населенный пункт: Минск
- Район: Центральный
- Микрорайон: Заславская
- Адрес: Тимирязева ул. 121/4
- Агентство: АН "7 этажей"
- УНП: 192361483
- Контактное лицо: Агент
- Телефон: +375 44 730-70-70
- E-mail: adv@an7.by
- Телефон: +375 44 730-70-70
- Вид сделки: Предложение


в избранное




