Продажа / Покупка: Продается офисное помещение по адресу Минск, Восточная ул., 133, Минск,
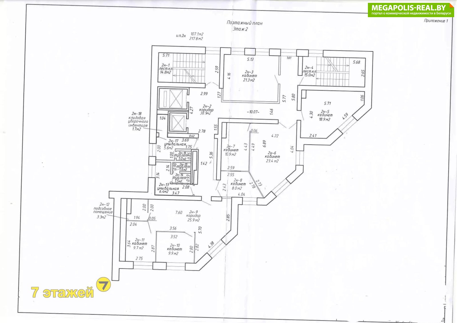
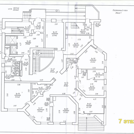
Административное 9-ти этажное здание с удобными офисными помещениями общей площадью 2445,7 кв.м., расположенное в одной из лучших локаций города, экологически чистом районе с развитой инфраструктурой. Здание построено по энергоэффективному проекту из красного кирпича с промежуточным утеплением и отделкой облицовочным бежевым кирпичом. Рядом со зданием расположена собственная огражденная автомобильная парковка со шлагбаумом и видеонаблюдением. Общая площадь участка составляет 0,2104 га., участок полностью огражден. Первый этаж здания оборудован защитными роллетами на окна. В холле находится ресепшен и два комфортных лифта для подъема на нужный этаж. На каждом этаже имеется вся необходимая инженерная инфраструктура для полноценной работы, в том числе два санузла. Большинство помещений сдаются а долгосрочную аренду. Дополнительная информация. Возможна продажа данного здания вместе с предприятием, которое является собственником данного объекта.
Важная информация!!! Собственником получено разрешение на реконструкцию здания под жилые помещения (квартиры).
Осуществляем полное сопровождение сделки.
Смотрите еще больше в нашем Telegram канале @an7_estate
ООО "7 этажей", УНП 192361483, лицензия № 02240/283 от 14.11.2014г., договор на оказание риэлтерских услуг 330/3 от 04.03.2025г.
Возможное назначение: Здание
- Площадь: 2446 м2
- Регион: Минск и район
- Населенный пункт: Минск
- Район: Советский
- Микрорайон: Леонида Беды
- Адрес: Восточная ул. 133
- Агентство: АН "7 этажей"
- УНП: 192361483
- Контактное лицо: Агент
- Телефон: +375 44 730-70-70
- E-mail: adv@an7.by
- Телефон: +375 44 730-70-70
- Вид сделки: Предложение


в избранное








