Продажа / Покупка: Продажа офисов от 1500 до 8700 кв.м в центре, метро, Минск,
Продаются административные помещения от 1500 до 8700 кв.м в самом центре столицы!
Идеальное расположение:
Бизнес-центр находится в центре города, в шаговой доступности от метро, что обеспечивает удобную транспортную доступность для сотрудников и клиентов.
Рядом – деловая инфраструктура, банки, рестораны и бизнес-центры.
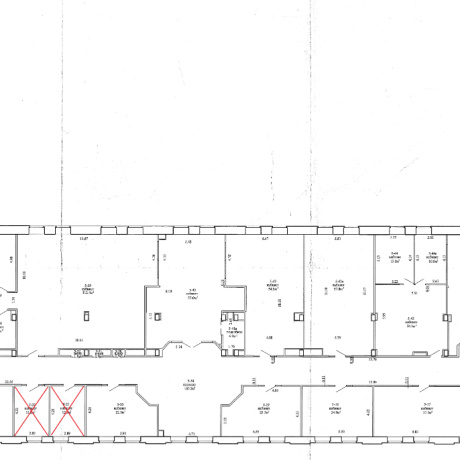
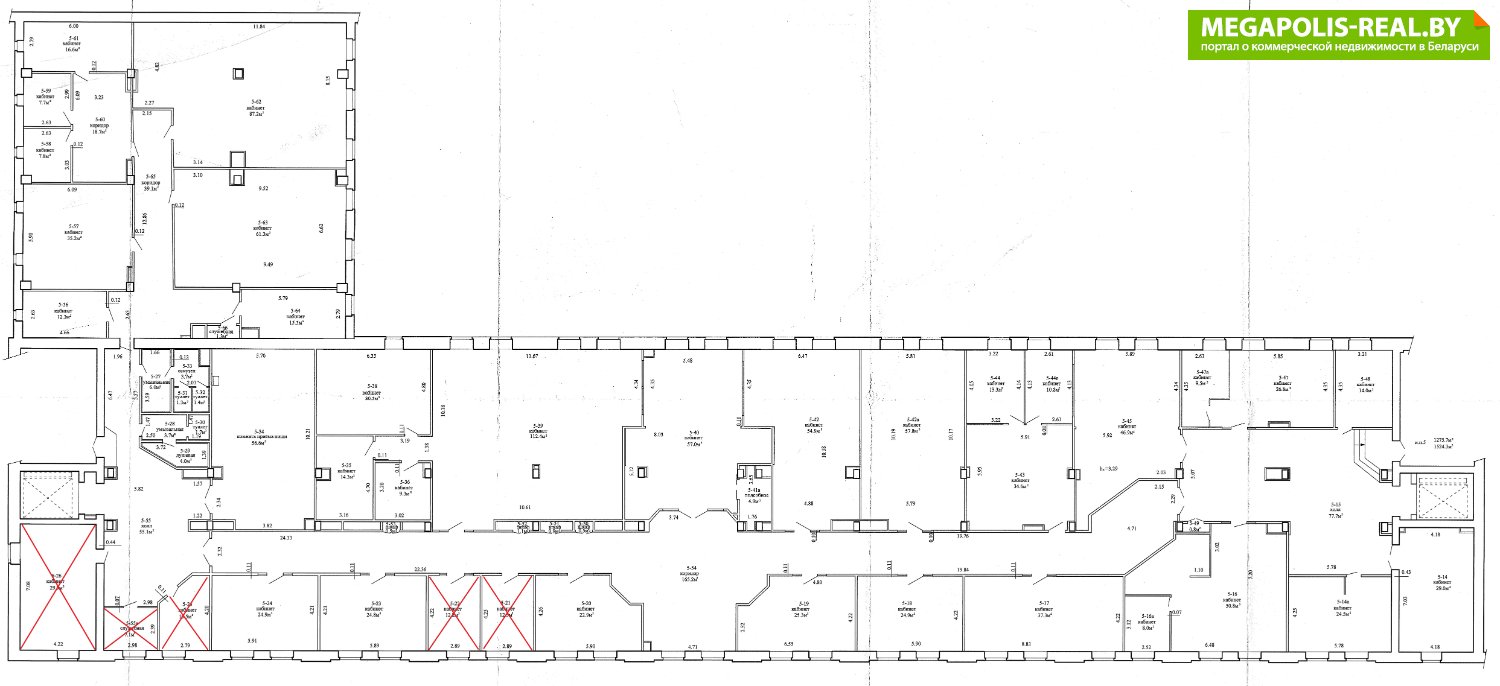
Характеристики объекта:
8 этажей с продуманной кабинетной планировкой – идеально для офисных помещений, банков, юридических компаний или корпоративного офиса.
Типовой этаж +/-1550 кв.м
Современный дизайн и престижный холл – создают хорошее первое впечатление у ваших гостей и партнёров.
Новые системы вентиляции и кондиционирования.
Круглосуточная охрана и система контроля доступа – безопасность вашего бизнеса под надёжной защитой.
Собственная парковка – комфорт для сотрудников и клиентов.
Отличная инвестиция:
Бизнес-центр обладает высоким потенциалом доходности – его можно использовать как под собственный бизнес, так и для сдачи в аренду премиальным арендаторам.
Возможность продажи целиком или по этажам!
Цена 1 кв.м - 1000$ с НДС.
- Площадь: 8700 м2
- Ремонт: да
- Интернет: да
- Охрана: да
- Парковка: да
- Режим работы здания: 24/7
- Близость к метро: Институт Культуры
- МФК: Фабрициуса 8Б
- Регион: Минск и район
- Населенный пункт: Минск
- Район: Московский
- Микрорайон: Фабрициуса
- Адрес: ФАБРИЦИУСА 8Б
- Контактное лицо: Ирина
- Вид сделки: Предложение
- Цена: с НДС
- Форма собственности: Частная


в избранное

























