Аренда: Сдается производственное/складское помещение по адресу г. Минск, Победителей просп., д. 131, г. Минск,
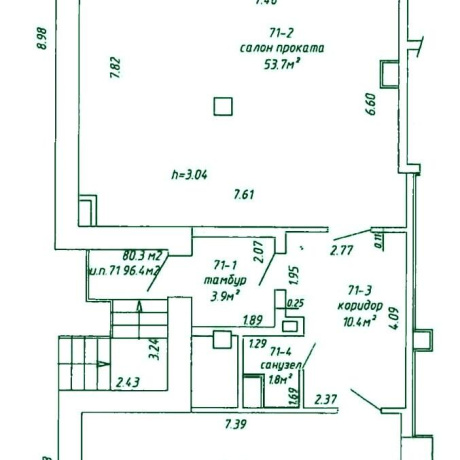
Сдаётся СВОБОДНОЕ ПОМЕЩЕНИЕ 96.4 м2
пр. Победителей,131
Помещение 96.4 м2 на 1 этаже. Отдельный вход. С отделкой, свой с/у.
47.16 бел. руб. за 1 м2 без НДС.
Парковка, оживленное место, удобный подъезд с пр. Победителей.
Организуем осмотр объекта.
Согласуем условия договора аренды.
Если Вам не подходит это помещение, поможем подобрать другое под Ваши требования.
Получить консультацию по указанному телефону.
- Площадь: 96 м2
- Режим работы здания: 24/7
- Интернет: есть
- Регион: Минск и район
- Населенный пункт: г. Минск
- Район: Центральный
- Микрорайон: Лебяжий
- Адрес: Победителей просп. д. 131
- Контактное лицо: Дмитрий
- Вид сделки: Предложение


в избранное

























