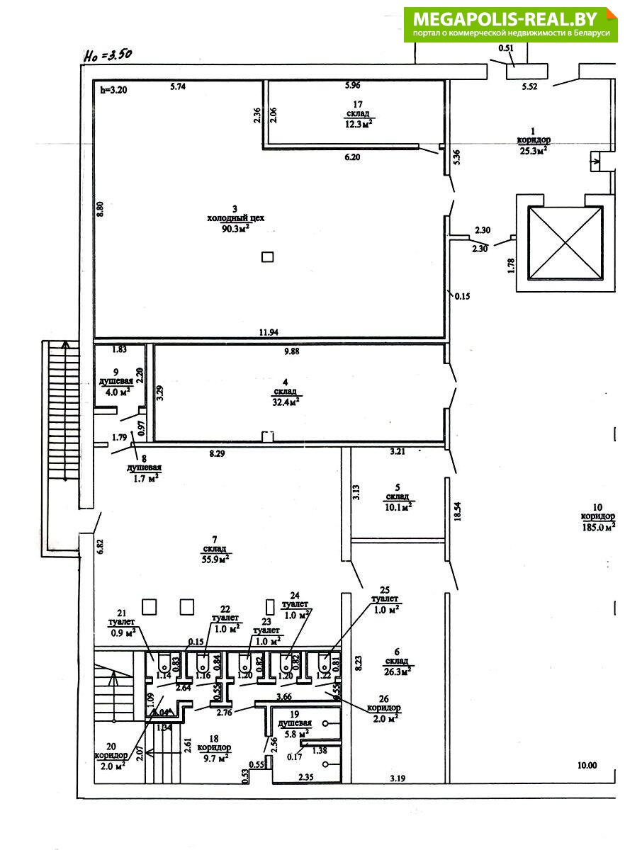
Аренда: Сдается производственное/складское помещение по адресу п. Городище, , д. 146 к. 10, п. Городище,
Сдаём в долгосрочную аренду здание (под производство или хранение).
п.Городище
Здание находится неподалёку от Юхновки, Логойское направление, на территории бывшего пионерского лагеря, в настоящий момент туристический комплекс .
Хорошие подъездные пути. Располагается среди леса, с дороги обзора здания нет.
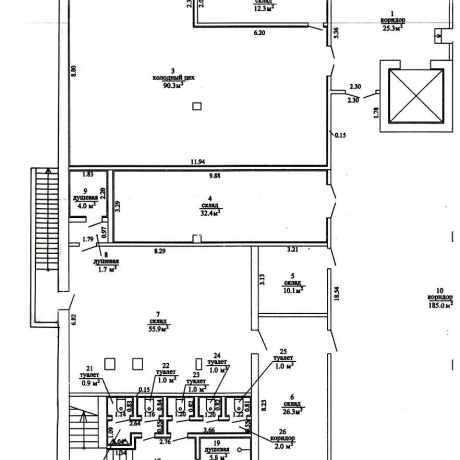
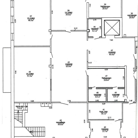
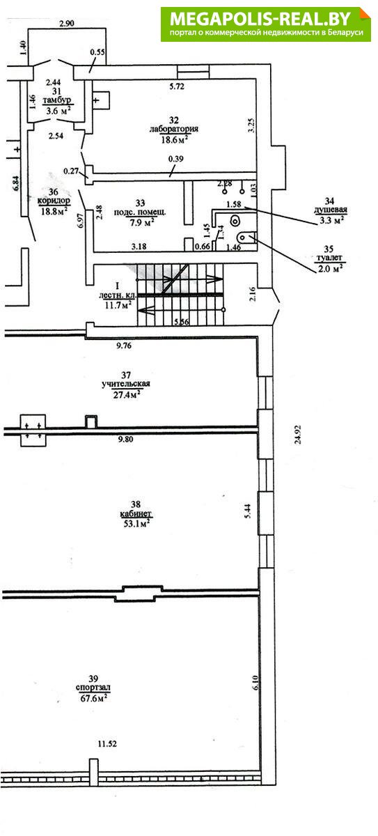
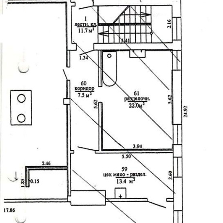
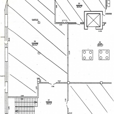
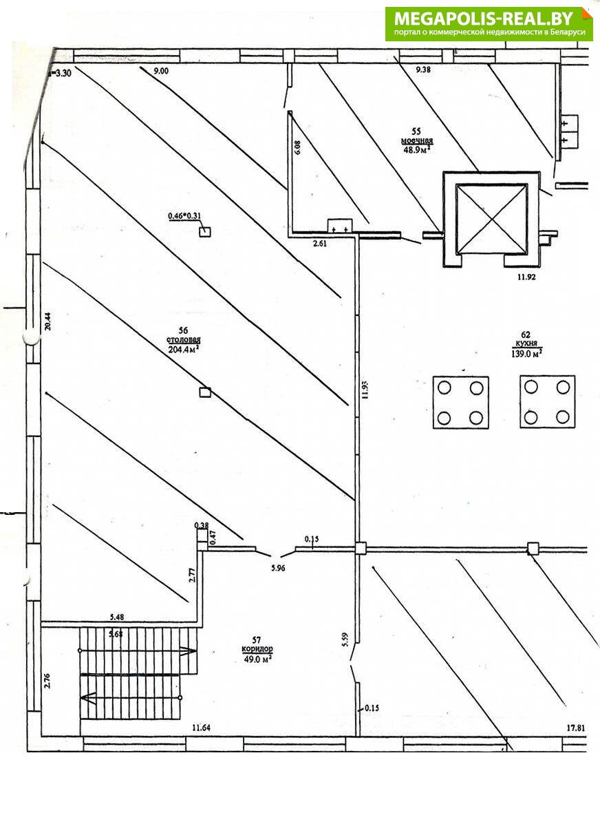
В здании есть подъемник, грузовой лифт. Территория вокруг столовой огорожена.
В здании подключено электричество. Канализация.Вода перекрыта.
С учётом специфики здания, может разместиться производство пивоварения, фасовка, под хранение, мебельное производство, сборку.
ООО "Агентство недвижимости ГермесГрупп». УНП 193776843. Лицензия Министерства Юстиции Республики Беларусь N 02240/487 от 07.08.2024 г.
- Площадь: 1966 м2
- Парковка: да
- Интернет: есть
- Регион: Минск и район
- Населенный пункт: п. Городище
- Район: Минский
- Направление от МКАД: Московское
- Контактное лицо: Виктория
- Телефон: +375 33 696-81-43
- Телефон: +375 33 696-81-43
- Вид сделки: Предложение


в избранное












































