код 21367S
Аренда: Склад-магазин 434,9 кв.м возле МКАД, Сеницкий с/с,
08.12.2025
45
Описание объекта
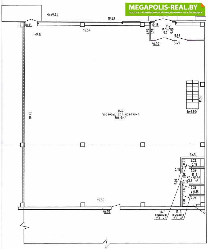
Сдается в аренду помещение 434,9 кв.м под склад, склад-магаин, шоурум, офис продаж, с отоплением, вода, свой с/у, парковка, удобный съезд с МКАД.
Подробнее...Параметры объекта
- Площадь: 434 м2
- Офисные площади: да
- Высота потолков: 9
- Парковка: да
- Интернет: да
Местоположение
- Регион: Минск и район
- Населенный пункт: Сеницкий с/с
- Район: Минский
- Направление от МКАД: В черте Минска
- Адрес: МКАД 1
Контактная информация
Агентство недвижимостиАй Кью Проперти Групп
УНП: 192203053
Договор: согласно регистрации
- Контактное лицо: Ирина
- Телефон: +375 29 151-79-64
- E-mail: fediram@mail.ru
- Телефон: +375 29 151-79-64
BYN
$
€
BYN/M2
0,00 $/M2
0,00 €/M2
- Вид сделки: Предложение
- Цена: с НДС
- Форма собственности: Частная
Поделиться в соцсетях


в избранное




















