Продажа / покупка: Производство 2802,9 м2 (продажа) Центральная 49, Минск,
Производственный объект находится по адресу ул.Центральная, 49 - в индустриальной части г.Минска. Удобное расположение рядом с одной из крупнейших магистралей города (пр-т Партизанский) и МКАД. В шаговой доступности ст.м.Автозаводская.
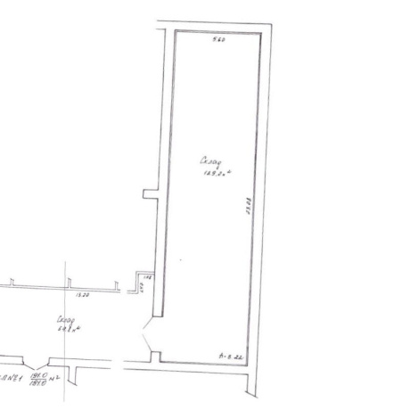
Общая площадь строений, расположенных на участке земли 0,9153 га, составляет 2802,9 кв.м.
Комплекс зданий включает:
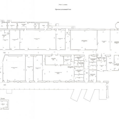
- производственный блок – 1287,1 кв.м.
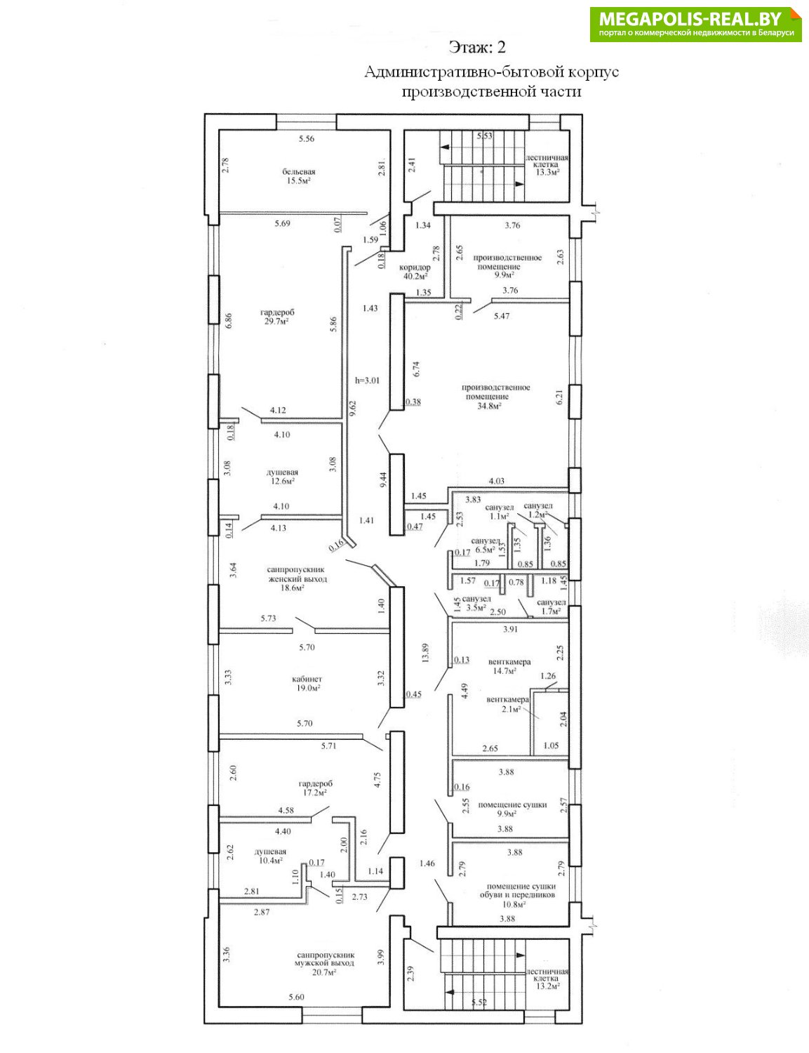
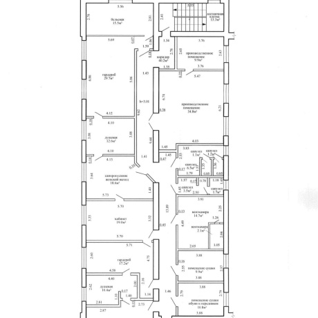
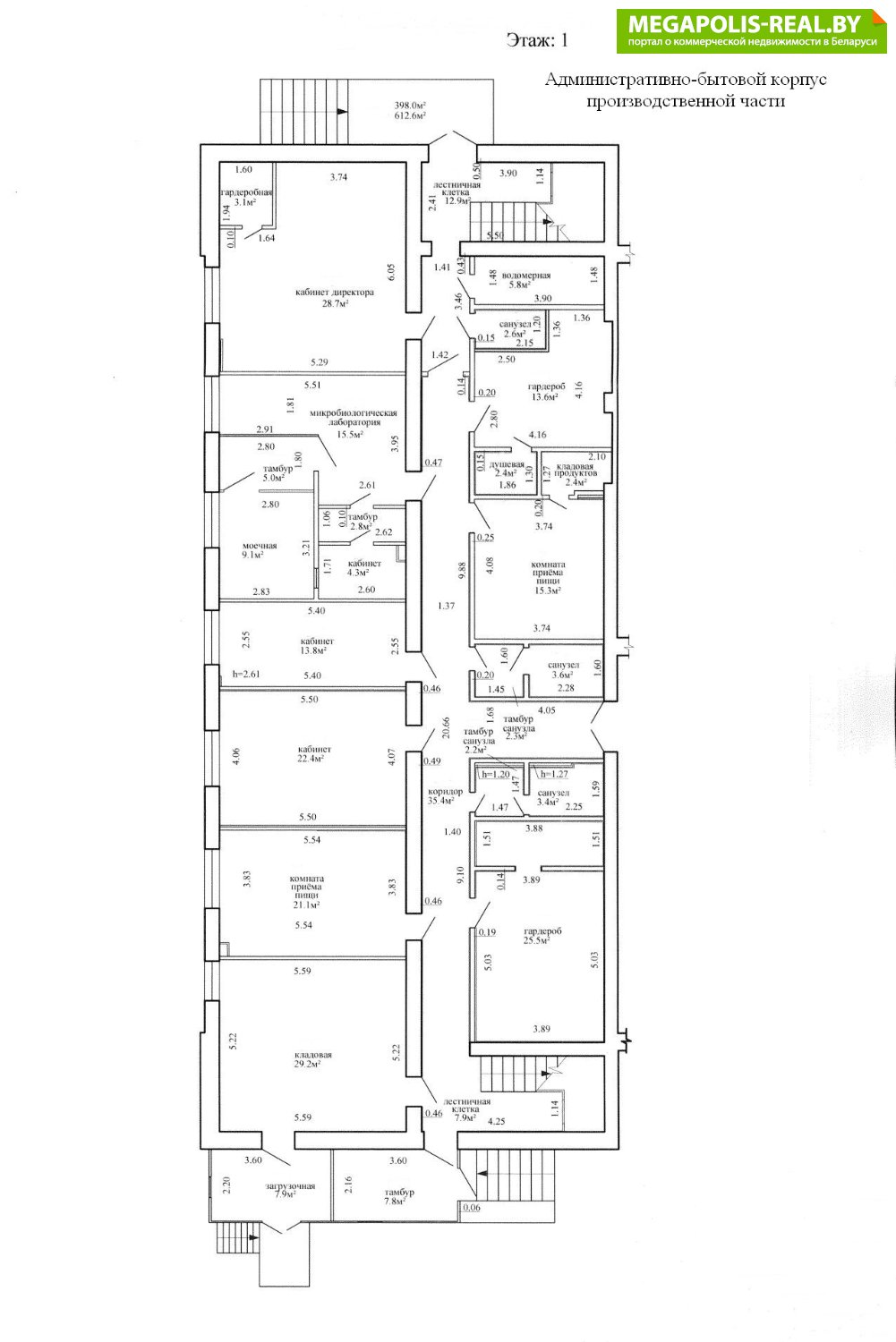
- административно-бытовой корпус производственной части – 612,6 кв.м.
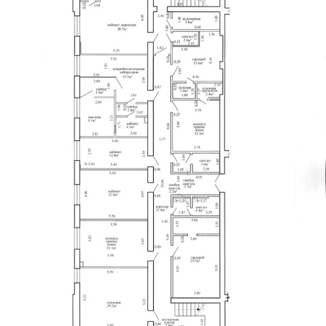
- административный блок – 291,6 кв.м.
- складское помещение – 194,0 кв.м.
- холодильная камера – 196,3 кв.м.
- гараж для техники – 139,2 кв.м.
- помещение электрика – 47,1 кв.м.
- магазин готовой продукции – 25,8 кв.м.
- здание КПП – 9,2 кв.м.
Помещения как производственного, так и административно-бытового назначения полностью соответствуют требованиям действующих ТНПА.
На объекте проведены коммуникации:
- собственный газопровод и котельная на газообразном топливе
- отопление АБК водяное от собственной котельной
- выделенная мощность по ТУ – 185 кВт (рядом расположена ТП на 400 кВА с резервом)
- канализация К3
- система приточно-вытяжной вентиляции
- холодное и горячее водоснабжение
Объект оснащен технологическим оборудованием для производства пищевой продукции, погрузочно-разгрузочной техникой, оборудован средне- и низкотемпературными холодильными камерами (сырье t -23ºC), рампой с доклевеллерами (перегрузочными мостами).
Благоустроенная территория с озеленением ограждена забором, установлена система видеонаблюдения и контроля доступа. Асфальтированная площадка для заезда и разворота всех видов транспорта, выделен участок для организации автомобильной стоянки.
Проектом развития территории планируется устройство автодороги, примыкающей к земельному участку с восточной границы участка
Свяжитесь с нами для получения дополнительной информации и организации просмотра!
Покупатель не оплачивает услуги агентства!
- Год постройки: 1980
- Площадь: 2802 м2
- Этажность здания: 3
- Высота потолков: -
- Вода/канализация: есть
- Мощность электричества: 185
- Отопление: есть
- Вентиляция: есть
- Парковка: да
- Охрана: да
- Режим работы здания: 24/7
- Регион: Минск и район
- Населенный пункт: Минск
- Район: Заводской
- Направление от МКАД: В черте Минска
- Адрес: ЦЕНТРАЛЬНАЯ 49
- Контактное лицо: Наталья
- Телефон: +375 29 380-85-85
- E-mail: marielt.komm@mail.ru
- Телефон: +375 29 380-85-85
- Вид сделки: Предложение
- Цена: с НДС
- Форма собственности: Частная
- Стоимость коммунальных услуг
(за все помещение):В отопительный сезон: - руб.В неотопительный сезон: - руб.


в избранное




































