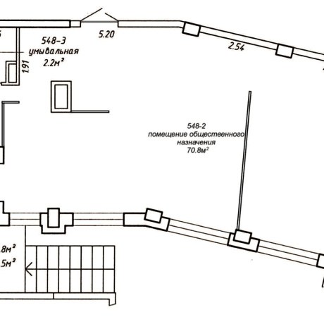
Аренда: Аренда многофункционального помещения 76,5 кв.м. в ЖК Мегаполис рядом со ст.м. Малиновка., Минск,
Помещение с отдельным входом, многофункционального назначения находится на 1-м этаже густонаселённого жилого комплекса. Имеет площадь, отлично подходящую для множества видов бизнеса.
Отлично подойдёт для:
- организации образовательных, обучающих, языковых курсов;
- школ танцев, единоборств и т.д.;
- офисов, магазинов, выставочных залов, пунктов выдачи и т.д.
Помещение с санузлом, имеется возможность вывода воды и канализации для парикмахерских, салонов красоты и пр.
Подведенная эл. мощность - 8кВт. Дополнительная вентиляция.
Шаговая доступность от ст.м. Малиновка.
Без оплаты услуг агентства недвижимости.
По всем вопросам смело звоните!
ООО «АвторЭстейт», лицензия выд. Министерством Юстиции РБ №02240/420 от 05.08.2021 г, УНП 193565765
- Год постройки: 2019
- Площадь: 76 м2
- Этаж: 1
- Ремонт: Нормальный
- Интернет: есть
- Близость к метро: Петровщина
- Питание: магазин
- Высота потолка: 2.99
- Мощность электричества: 8
- Вход в помещение: Отдельный
- Регион: Минск и район
- Населенный пункт: Минск
- Район: Московский
- Микрорайон: Брилевичи
- Адрес: ДЗЕРЖИНСКОГО 123
- Контактное лицо: Александр Фомич
- Телефон: +375 29 148-69-11
- E-mail: info@a-estate.by
- Телефон: +375 29 148-69-11
- Вид сделки: Предложение
- Цена: с НДС
- Форма собственности: Частная
- Стоимость коммунальных услуг
(за все помещение):В отопительный сезон: 1 руб.В неотопительный сезон: 1 руб.


в избранное








