Аренда: Аренда помещения 77,5 м2 ул Скрипникова 15, Минск,
Сдается в аренду торговое помещение в цокольном этаже многоэтажного жилого дома, с отдельным входом.
Преимущества:
Рядом остановка общественного транспорта; располагается сразу за продуктовым магазином АЛМИ;
Идеально подходит для пункта выдачи или шоурума, низкая ставка аренды.
Арендатор не оплачивает услуги агентства!
- Год постройки: 2007
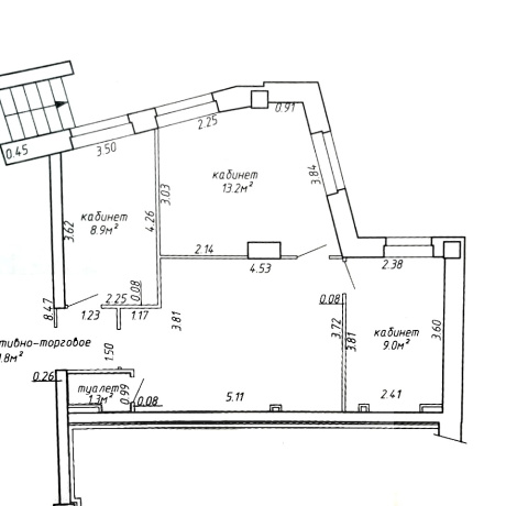
- Площадь: 77 м2
- Ремонт: нормальный
- Интернет: есть
- Парковка: да
- Режим работы здания: 24/7
- Близость к метро: Каменная Горка
- Питание: магазин
- Высота потолка: -
- Мощность электричества: -
- Регион: Минск и район
- Населенный пункт: Минск
- Район: Фрунзенский
- Микрорайон: Сухарево
- Адрес: СКРИПНИКОВА 15
- Контактное лицо: Наталья
- Телефон: +375 29 380-85-85
- E-mail: marielt.komm@mail.ru
- Телефон: +375 29 380-85-85
- Вид сделки: Предложение
- Цена: без НДС
- Форма собственности: Частная
- Стоимость коммунальных услуг
(за все помещение):В отопительный сезон: - руб.В неотопительный сезон: - руб.


в избранное


























