Аренда: Аренда торгового помещения 221.2 м2 ул Долгобродская 10/1, Минск,
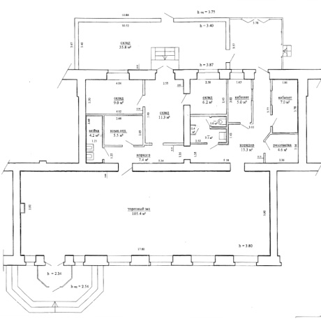
Сдается в аренду торговое помещение на 1-м этаже жилого дома. Отлично подойдёт под магазин, шоурум, а также сферу услуг.
- два отдельных входа с доступом 24/7;
- рампа для загрузки со стороны двора;
- проведены коммуникации: приточно-вытяжная вентиляция, отопление, система кондиционирования, пожарно-охранная сигнализация, видеонаблюдение;
- проведённая электрическая мощность 37 кВт;
- высокие потолки 3.8м;
- удобное расположение: помещение расположено рядом с остановкой общественного транспорта, между ст. м. «Тракторный завод» и ст. м. «Площадь Победы».
- высокий пешеходный и авто трафик, в соседнем помещении находится магазин «Соседи».
Арендатор не оплачивает услуги агентства.
- Год постройки: 1958
- Площадь: 221 м2
- Этаж: 1
- Ремонт: Хороший ремонт
- Близость к метро: Тракторный завод
- Питание: магазин
- Высота потолка: 3.8
- Мощность электричества: 37 кВт
- Вход в помещение: Отдельный
- Регион: Минск и район
- Населенный пункт: Минск
- Район: Октябрьский
- Микрорайон: Козлова, Захарова
- Адрес: ДОЛГОБРОДСКАЯ 10/1
- Контактное лицо: Отдел коммерческой недвижимости
- Телефон: +375 29 380-85-85
- E-mail: marielt.komm@mail.ru
- Телефон: +375 29 380-85-85
- Вид сделки: Предложение
- Цена: с НДС
- Форма собственности: Частная
- Стоимость коммунальных услуг
(за все помещение):В отопительный сезон: - руб.В неотопительный сезон: - руб.


в избранное

















