Аренда: Аренда торгового помещения 182,9 м2 Машиностроителей 29, Минск,
Предлагаем в аренду помещение по адресу г. Минск, ул. Машиностроителей 29.
Аренда торгового помещения в БЦ класcа B+ «ТехноПарк».
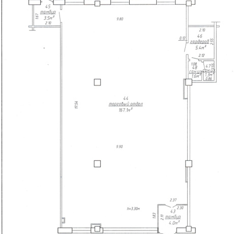
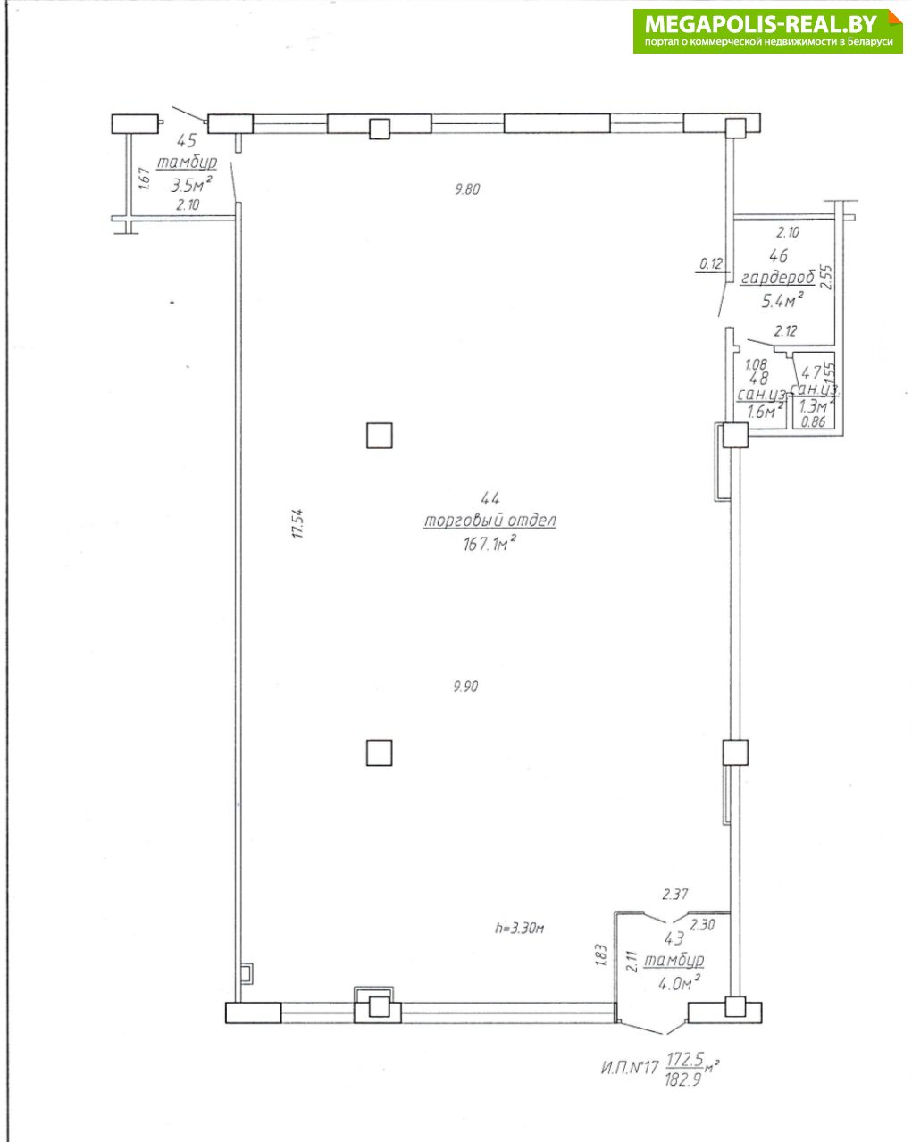
Коммерческое помещение общей площадью 182,9 м2 расположено на первом этаже офисного здания в развитой промышленно-складской локации.
Помещение подойдет для размещения магазина, офиса или организации торгово-складской деятельности. В помещении проведены коммуникации:
- отдельный входа
- электроснабжение, вода, отопление
- собственный с/у
- пожарная сигнализация
- естественная вентиляция
- телефонная сеть.
Арендатор не платит комиссию агентству! Готовы рассмотреть Ваши предложения. Звоните!
- Год постройки: 2010
- Площадь: 182 м2
- Этаж: 1
- Ремонт: хороший
- Интернет: есть
- Охрана: да
- Парковка: да
- Режим работы здания: 24/7
- Близость к метро: Могилёвская
- Питание: магазин
- Высота потолка: 3
- Мощность электричества: -
- Контактное лицо: Кристина
- Телефон: +375 29 380-85-85
- E-mail: grcompmarielt@gmail.com
- Телефон: +375 29 380-85-85
- Вид сделки: Предложение
- Цена: без НДС
- Форма собственности: Частная
- Стоимость коммунальных услуг
(за все помещение):В отопительный сезон: - руб.В неотопительный сезон: - руб.


в избранное





















