Аренда: Многофункциональное помещение 129,4 кв. м (ул. Гастелло, 8), Минск,
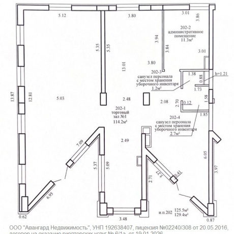
Предлагаем Вашему вниманию многофункциональное помещение общей площадью 129,4 кв. м, расположенное по адресу: г. Минск, ул. Гастелло,8.
Функциональные особенности помещения позволяют использовать его под разные виды бизнеса.
Общие характеристики объекта:
- располагается на цокольном этаже жилого дома;
- 2 отдельных входа с доступом 24/7;
- установлена тепловая завеса;
- панорамные окна;
- высота потолков 2,86 м;
- без отделки;
- частично разведена электрика;
- собственный санузел;
- возможность размещения рекламы на фасаде здания.
Инженерные коммуникации:
- действующая приточно-вытяжная вентиляция;
- выделенная мощность – 14,4 кВт;
- вывод воды/канализации (имеется накопительный бойлер);
- заведено оптоволокно;
- установлены ИПУ;
- действующая пожарная сигнализация;
- видеонаблюдение по периметру здания.
Локация:
Объект располагается в центральной части города.
500 метров до остановок общественного транспорта.
2 остановки на общественном транспорте до ст. м «Немига».
Плоскостная парковка возле дома.
Собственник не является плательщиком НДС.
Арендатор не оплачивает услуги агентства.
Звоните прямо сейчас!
- Год постройки: 2024
- Площадь: 129 м2
- Этаж: 1
- Ремонт: Без отделки
- Интернет: Скоростной
- Парковка: да
- Количество телефонов: есть
- Режим работы здания: 24/7
- Близость к метро: Молодежная
- Высота потолка: 2.86
- Мощность электричества: -
- Вход в помещение: Отдельный
- Регион: Минск и район
- Населенный пункт: Минск
- Район: Центральный
- Микрорайон: Тимирязева
- Адрес: ГАСТЕЛЛО 8
- Контактное лицо: Владислав
- Телефон: +375 29 109-54-06
- E-mail: avangardn1212@gmail.com
- Телефон: +375 29 109-54-06
- Вид сделки: Предложение
- Цена: с НДС
- Форма собственности: Частная
- Тип договора: прямая аренда
- Стоимость коммунальных услуг
(за все помещение):В отопительный сезон: - руб.В неотопительный сезон: - руб.


в избранное








