Аренда: Помещение 105 м2(аренда) Партизанский пр-т 45, Минск,
Помещение с отдельным входом расположено в жилом доме на пересечении пр-та Партизанского и ул.Буденного.
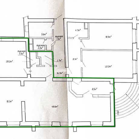
Коммерческое помещение общей площадью 105,0 м2 подойдет для размещения медицинского центра, магазина, банковского отделения, салона красоты, офиса и других сфер бизнеса.
Густонаселенный район, активный автомобильный трафик, рядом парковка.
В пешей доступности остановки общественного транспорта.
В помещении проведены коммуникации:
- электроснабжение, вода, отопление, собственный с/у, пожарная сигнализация, приточно-вытяжная вентиляция, телефонная сеть.
Если вас заинтересовало предложение, позвоните нам и мы ответим на все ваши вопросы!
Арендатор не оплачивает услуги риэлтерской организации!
- Год постройки: 2002
- Площадь: 105 м2
- Этаж: 1
- Ремонт: нормальный
- Интернет: есть
- Парковка: да
- Близость к метро: Тракторный завод
- Питание: магазин
- Высота потолка: 3
- Мощность электричества: -
- Регион: Минск и район
- Населенный пункт: Минск
- Район: Партизанский
- Микрорайон: нач.Партизанского, пл.Ванеева
- Адрес: ПАРТИЗАНСКИЙ 45
- Контактное лицо: Наталья
- Телефон: +375 29 380-85-85
- E-mail: marielt.komm@mail.ru
- Телефон: +375 29 380-85-85
- Вид сделки: Предложение
- Цена: без НДС
- Форма собственности: Частная
- Стоимость коммунальных услуг
(за все помещение):В отопительный сезон: - руб.В неотопительный сезон: - руб.


в избранное



















































