Аренда: Помещение 51 м2 (аренда) ул Щорса 11, Минск,
Предлагаем в аренду помещения рядом со станцией метро «Грушевка»!
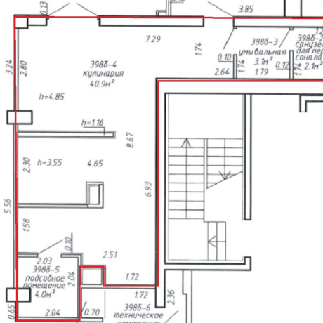
Помещение площадью 51 м² располагается на 1-м этаже жилого дома, по адресу ул. Щорса 11.
Помещение находится рядом со станцией метро «Грушевка», на пересечении улиц Щорса и Дзержинского. Локация с высоким пешеходным трафиком, большой жилой массив. Оживленное место, в шаговой доступности остановки общественного транспорта.
• Метро «Грушевка»;
• Помещение бывшего общепита;
• Приточно-вытяжная вентиляция;
• Доступная мощность 20 кВт;
• Высокие потолки 3,55-4,85 метров;
• Свой сан. узел в помещении;
• Доступ в помещение 24/7;
• Подъездные пути/парковка.
Проведены коммуникации: электроснабжение, вода, отопление, пожарная сигнализация, вентиляция.
Арендатор не платит комиссию агентству!
Готовы рассмотреть Ваши предложения.
Звоните!
- Площадь: 51 м2
- Этаж: 1
- Ремонт: Хороший ремонт
- Близость к метро: Грушевка
- Высота потолка: 3,55/4,85
- Мощность электричества: 20
- Регион: Минск и район
- Населенный пункт: Минск
- Район: Московский
- Микрорайон: Грушевка
- Адрес: ЩОРСА 11
- Контактное лицо: Иван
- Телефон: +375 29 380-85-85
- E-mail: marielt.komm@mail.ru
- Телефон: +375 29 380-85-85
- Вид сделки: Предложение
- Цена: с НДС
- Форма собственности: Частная
- Стоимость коммунальных услуг
(за все помещение):В отопительный сезон: - руб.В неотопительный сезон: - руб.


в избранное
























