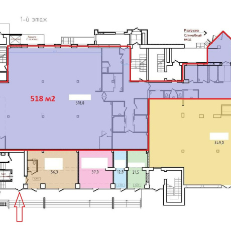
Аренда: Помещение 518 м2 (аренда) ул Притыцкого 146, Минск,
Предлагаем аренду помещений возле метро «Каменная горка»!
Помещение общей площадью - 518 м² располагается на 1-м этаже, по адресу, ул. Притыцкого 146.
Назначение объекта – Здание специализированное розничной торговли.
Удобная локация с большим пешеходным и автомобильным трафиком.
Рядом со зданием парковка, остановки общественного транспорта и метро «Каменная горка».
Рядом множество коммерческих помещений формата Street Retail: магазины, аптеки, кофейни, рестораны и т.д.
• Локация с большим трафиком;
• Метро «Каменная горка»;
• Приточно-вытяжная вентиляция;
• Доступ в помещения 24/7;
• Подъездные пути;
• Парковка возле здания.
Проведены коммуникации: электроснабжение, отопление, пожарная сигнализация, приточно-вытяжная вентиляция, скоростной интернет.
Арендатор не платит комиссию агентству!
Готовы рассмотреть Ваши предложения.
Звоните!
- Площадь: 518 м2
- Этаж: 1
- Ремонт: без отделки
- Интернет: скоростной интернет
- Парковка: да
- Близость к метро: Каменная Горка
- Высота потолка: -
- Мощность электричества: -
- МФК: Притыцкого 146
- Регион: Минск и район
- Населенный пункт: Минск
- Район: Фрунзенский
- Микрорайон: Каменная горка
- Адрес: Притыцкого 146
- Контактное лицо: Иван
- Телефон: +375 29 380-85-85
- E-mail: marielt.komm@mail.ru
- Телефон: +375 29 380-85-85
- Вид сделки: Предложение
- Цена: без НДС
- Форма собственности: Частная
- Стоимость коммунальных услуг
(за все помещение):В отопительный сезон: - руб.В неотопительный сезон: - руб.


в избранное




































































































