Аренда: Сдается торговое помещение по адресу г. Минск, Быховская ул., д. 37, г. Минск,
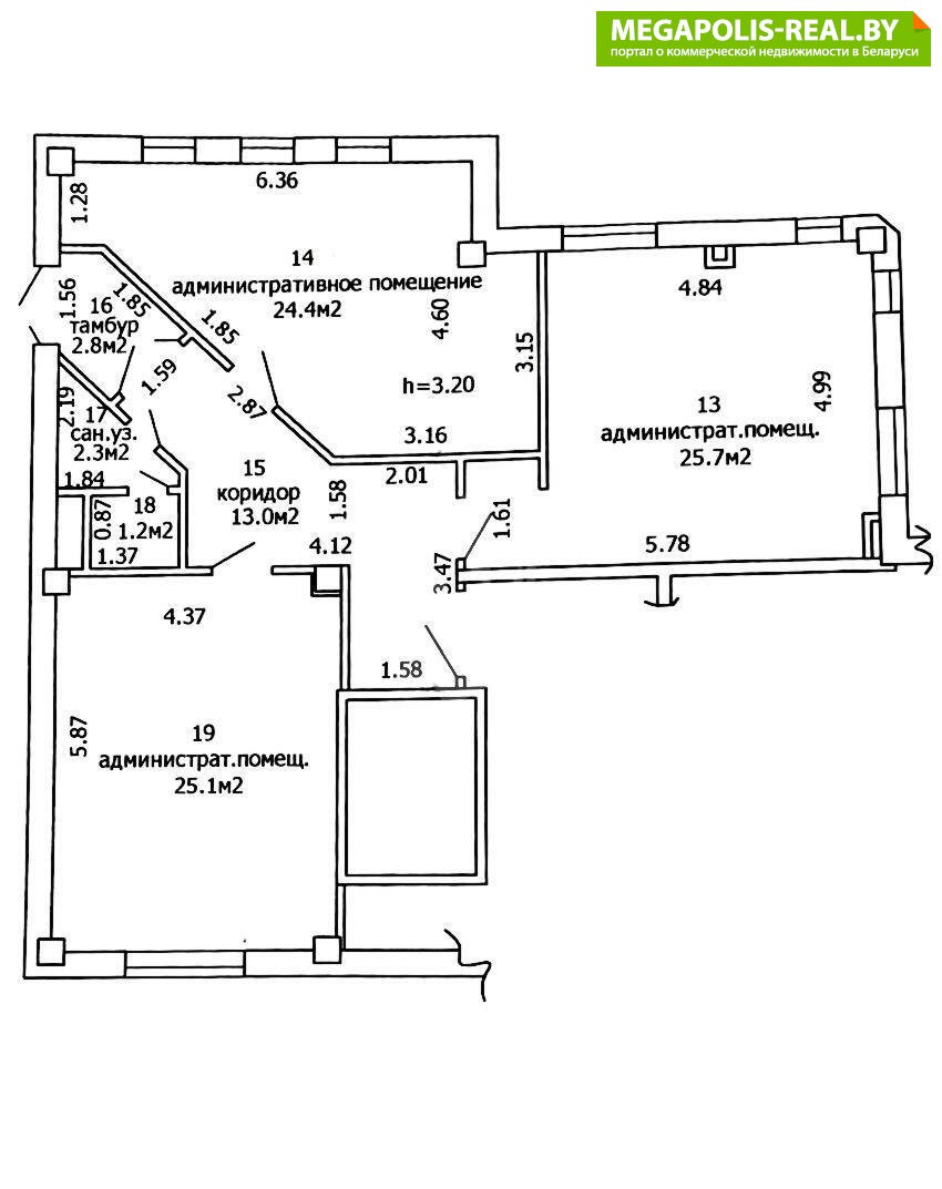
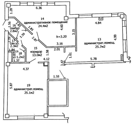
Предлагается в аренду изолированное офисное помещение с 3 отдельными кабинетами общей площадью 94.5 м2 на цокольном этаже. Отличное расположение в непосредственной близости от станции метро «Ковальская Слобода».
Планировка и коммуникации:
3 отдельных кабинета; Небольшая кладовая комната для хранения; Современная отделка, с ремонтом. Собственный санузел; Подведен оптоволоконный кабель для высокоскоростного интернета; Телефонные линии. Коммунальные платежи: 400-600 руб./мес. (лето), 700-900 руб./мес. (зима).
Безопасность и доступ:
Круглосуточный доступ в здание; Рядом парковка; Пожарная сигнализация; Видеодомофон; Около станции метро «Ковальская Слобода».
Последними арендаторами были: Розничный китайский магазин и отделение «Белпочты».
Больше объявлений тут: www.instagram.com/garant.arenda
Напишите нам в удобный для Вас мессенджер:
Viber | Telegram | WhatsApp
Ответим на Ваши вопросы, предоставим всю необходимую дополнительную информацию.
ООО «Артель Недвижимость»
УНП 193820882
Лицензия Министерства Юстиции №48250000081913 06.03.2025 г.
Договор №15/2а от 12.01.2026
- Площадь: 95 м2
- Интернет: есть
- Парковка: да
- Близость к метро: Ковальская Слобода
- Питание: магазин
- Регион: Минск и район
- Населенный пункт: г. Минск
- Район: Октябрьский
- Микрорайон: Чкаловский
- Адрес: Быховская ул. д. 37
- Контактное лицо: Недвижимость
- Телефон: +375 29 839-60-58
- Телефон: +375 29 839-60-58
- Вид сделки: Предложение


в избранное


































