Аренда: Сдается торговое помещение по адресу г. Минск, Стадионная ул., д. 5, г. Минск,
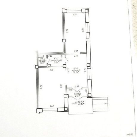
Предлагаем в аренду торговое помещение площадью 60,1 кв.м, с отдельным входом расположенное в жилом доме по адресу ул.Стадионная, 9.
В непосредственной близости расположен новый ЖК «Левада», густонаселенный район с платежеспособной аудиторией, что обеспечивает хороший трафик посетителей.
Объект представляет собой просторное помещение с хорошим ремонтом: отделка, покраска стен, сан.узел. Помещение готово к эксплуатации, дополнительных затрат не требует. Отдельный вход обеспечивает доступ в помещение 24/7, удобная погрузка-разгрузка товара.
В пешей доступности остановки общественного транспорта, удобное транспортное сообщение для автомобилей.
В помещении проведены коммуникации:
- электроснабжение, водоснабжение, центральное отопление, с/у, пожарная сигнализация, принудительная вентиляция, телефонная сеть.
Подойдет для размещения магазина, шоурума, салона красоты, студии фитнеса, офиса и других сфер бизнеса.
- хороший ремонт;
- 10 кВт, 380В, водоснабжение, отопление, оптоволокно;
- принудительная система вентиляции;
- видеонаблюдение;
- отдельный вход 24/7 входа, удобная погрузка/разгрузка;
- парковка.
Арендатор не оплачивает услуги агентства.
Организуем показ в удобное для вас время.
Звоните!
Больше объявлений тут: www.instagram.com/garant.arenda
Напишите нам в удобный для Вас мессенджер:
Viber | Telegram | WhatsApp
Ответим на Ваши вопросы, предоставим всю необходимую дополнительную информацию.
ООО «Артель Недвижимость»
УНП 193820882
Лицензия Министерства Юстиции №48250000081913 06.03.2025 г.
Договор № 244/2а от 18.03.2026.
- Площадь: 60 м2
- Регион: Минск и район
- Населенный пункт: г. Минск
- Микрорайон: Шевченко
- Адрес: Стадионная ул. д. 5
- Контактное лицо: Гарант Недвижимость
- Телефон: +375 29 323-74-72
- Телефон: +375 29 323-74-72
- Вид сделки: Предложение


в избранное


































