Аренда: Сдаётся в аренду подвал 180 м² на проспекте Независимости, 58 с отдельным входом под бизнес, Минск,
Сдается в аренду подвал 180 м2 под бизнес (квесты, VR, клубы)
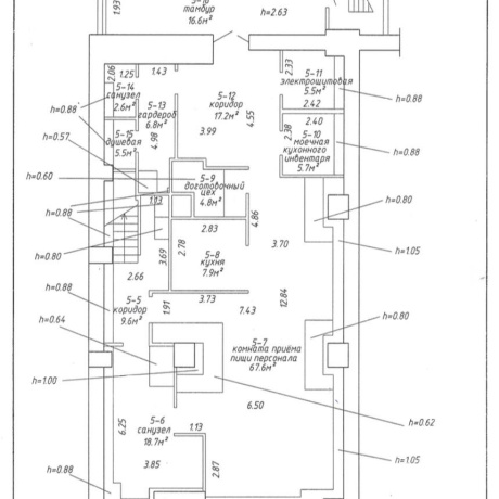
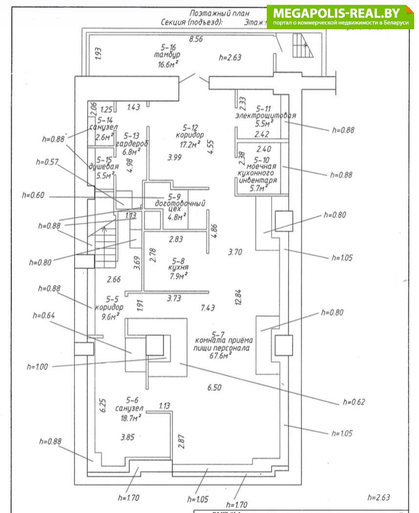
Сдаётся нежилое помещение (подвал) общей площадью 180 квадратных метров.
Расположение: г. Минск, пр-т Независимости, 58
Назначение: Идеально подходит для организации детского досуга (лазертаг, квесты, VR, компьютерный клуб), а также для склада или мастерской.
Характеристики:
· Площадь: 180 м2
· Адрес: пр-т Независимости, 58
· Возможность организации любых зон! Большое пространство для ярких проектов!
Арендатор не оплачивает услуги
- Площадь: 180 м2
- Ремонт: есть
- Интернет: есть
- Близость к метро: Площадь Якуба Коласа
- Высота потолка: 2.7-3
- Мощность электричества: 70
- Вход в помещение: Отдельный
- МФК: Московско-Венский
- Регион: Минск и район
- Населенный пункт: Минск
- Район: Советский
- Микрорайон: Гикало, Золотая Горка
- Адрес: НЕЗАВИСИМОСТИ 58
- Точки притяжения посетителей возле объекта: Банковское отделение, Вуз, колледж, Кафе, бар, ресторан, Медицинский центр, Остановка общественного транспорта, Парикмахерская, салон красоты, Продуктовый магазин, Торговый центр
- Контактное лицо: Елена
- Телефон: +375 25 544-84-54
- E-mail: info@a-estate.by
- Телефон: +375 25 544-84-54
- Вид сделки: Предложение
- Цена: с НДС
- Форма собственности: Частная
- Стоимость коммунальных услуг
(за все помещение):В отопительный сезон: 1 руб.В неотопительный сезон: 1 руб.


в избранное























