Аренда: SILVER TOWER - АРЕНДА ПОМЕЩЕНИЯ ПОД КАФЕ/ОБЪЕКТ ПИТАНИЯ/КУЛИНАРНУЮ СТУДИЮ/КЕЙТЕРИНГ, Минск,
Сдается в аренду помещение под КАФЕ /объект питания/ КЕЙТЕРИНГ
проведение кулинарных мастер-классов/кулинарную студию
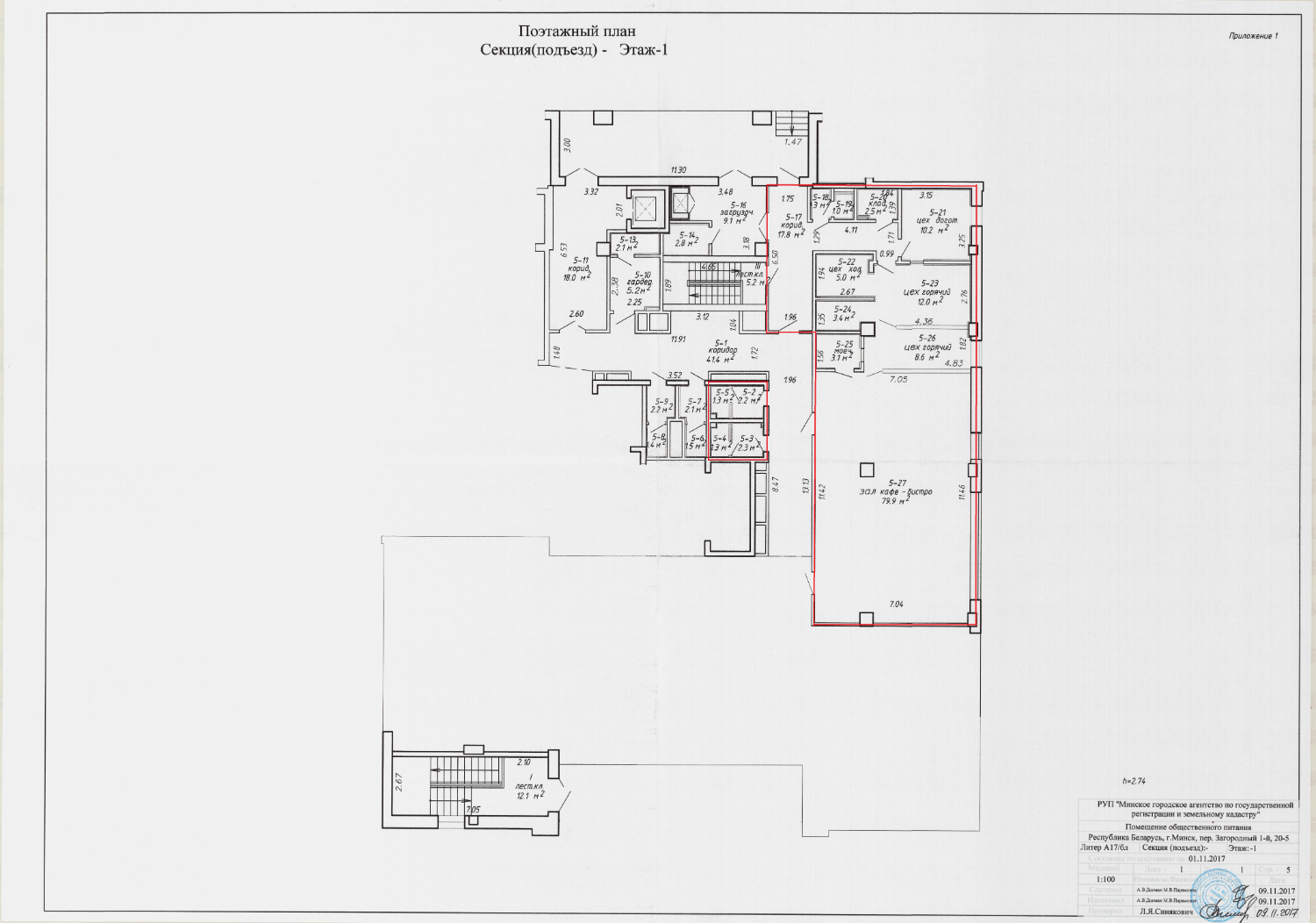
Помещение с косметичским ремонтом, сан.узлами для персонала и посетителей, расположено на 1 этаже БЦ SILVER TOWER;
Есть заезд для разгрузки-погрузки товаров с отдельным входом со стороны рампы.
БЦ SILVER TOWER расположен в шаговой доступности к метро "Молодежная"- Вашим гостям будет удобно и легко до вас добраться из любого района г. Минска.
Напротив Республиканский центр олимпийской подготовки по водным видам спорта - что придает динамичную атмосферу, постонный поток спортсменов и зрителей.
Это шанс не арендовать квадратные метры, а приобрести точку роста для вашего бренда!!!
- Год постройки: 2009
- Площадь: 151 м2
- Этаж: 1
- Ремонт: Удовлетворительный
- Парковка: да
- Режим работы здания: 24/7
- Близость к метро: Молодежная
- Питание: кафе
- Высота потолка: 2,7-3 м
- Мощность электричества: 30
- Вентиляция: Приточно-вытяжная /технологическая вытяжка
- Вход в помещение: Отдельный
- Количество входов: 2
- Регион: Минск и район
- Населенный пункт: Минск
- Район: Фрунзенский
- Микрорайон: Харьковская
- Адрес: пер.Загородный 1-ый 20
- Точки притяжения посетителей возле объекта: Кафе, бар, ресторан, Остановка общественного транспорта, Продуктовый магазин, Торговый центр
- Собственник, юр. лицо:
- Контактное лицо: Татьяна
- Телефон: +375 29 321-77-77
- E-mail: t.mironchik@bnk-estate.by
- Телефон: +375 29 321-77-77
- Вид сделки: Предложение
- Цена: без НДС
- Форма собственности: Частная
- Тип договора: прямая аренда
- Стоимость коммунальных услуг
(за все помещение):В отопительный сезон: по тарифам энергоснабжающих служб руб.В неотопительный сезон: по тарифам энергоснабжающих служб руб.


в избранное
















