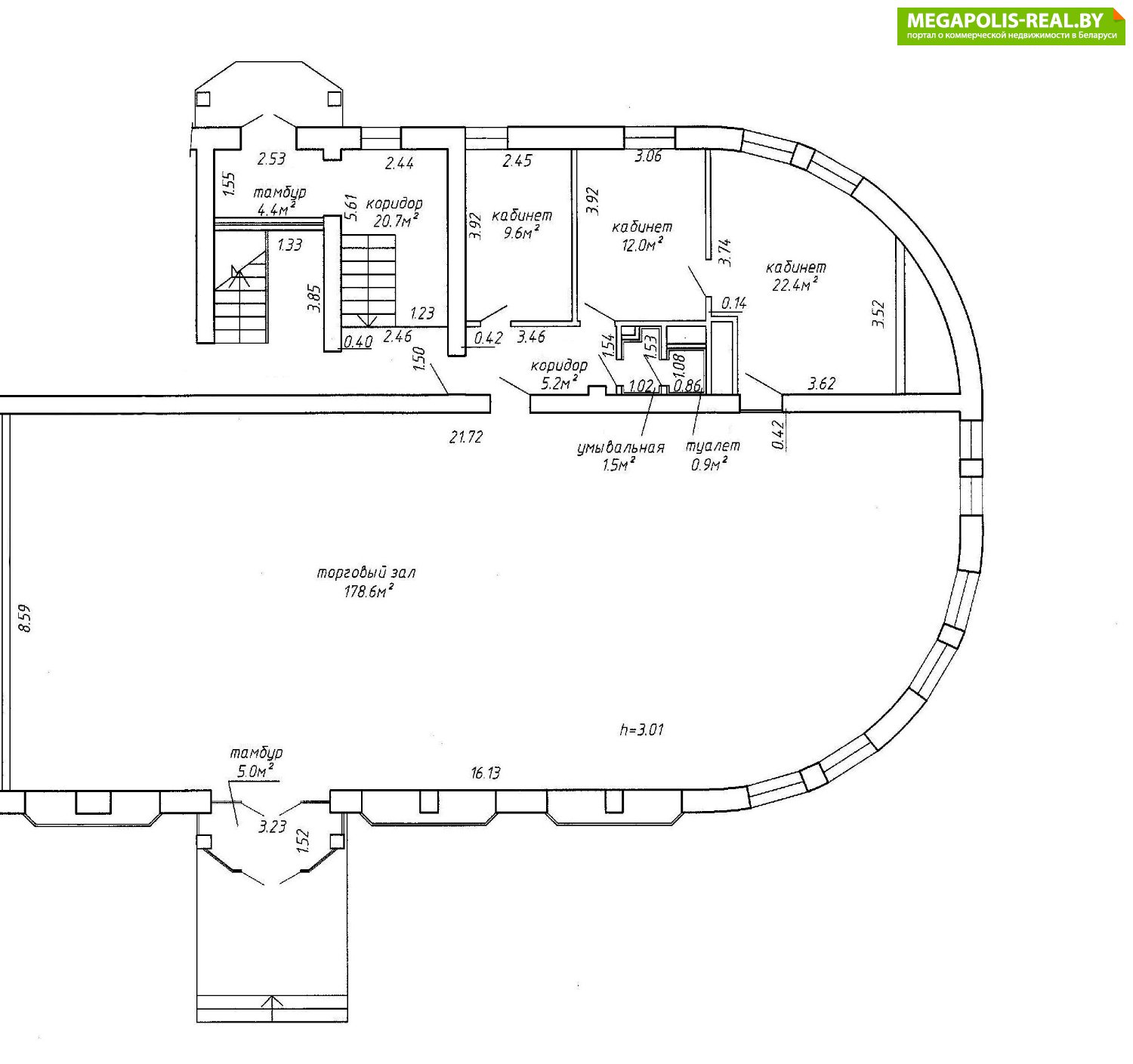
Аренда: Торговое помещение 234 м.кв. на 1 этаже возле ст.м. Академия наук, Минск,
Аренда просторного торгового помещения 234,4 м.кв. с отдельным входом в центре города на Сурганова 29.
Вентиляция, пожарно-охранная сигнализация, центральное отопление, оптоволокно, телефон.
Система кондиционирования.
Свой санузел.
Кабинеты для бухгалтерии, руководителя.
Хороший ремонт.
Доступ в помещение круглосуточный.
Парковка с обратной стороны здания.
Отлично подойдёт под непродуктовый магазин, услуги, офис, шоу-рум.
Удобный район с развитой инфраструктурой: продуктовые магазины, общепит, торговые центры.
Непосредственная близость к центру города.
Рядом остановки общественного транспорта.
5 минут пешком до ст. метро "Академия наук".
Затраты на коммунальные услуги, включая электроэнергию, 5...7 р./м.кв.
Аренда без НДС (0%).
Звоните!
ООО «ЭТАЖИ юнайтед»
УНП: 193673318
Договор № 28/1а от 18.01.2024.
Лицензия на оказание риэлтерских услуг №02240/460 МЮ РБ от 03.04.2023
- Площадь: 234 м2
- Этаж: 1
- Интернет: есть
- Парковка: нет
- Режим работы здания: 24/7
- Близость к метро: Академия наук
- Высота потолка: 3,04
- Мощность электричества: -
- Витринное остекление: да
- Первая линия объекта: да
- Вход в помещение: Отдельный
- МФК: Сурганова 29
- Регион: Минск и район
- Населенный пункт: Минск
- Район: Первомайский
- Микрорайон: Якуба Коласа
- Адрес: Сурганова 29
- Точки притяжения посетителей возле объекта: Остановка общественного транспорта
- Контактное лицо: Петр
- Телефон: +375 44 586-74-52

- E-mail: m.a.markevich@minsk.etagi.com
- Телефон: +375 44 586-74-52

- Вид сделки: Предложение
- Цена: без НДС
- Форма собственности: Частная
- Тип договора: прямая аренда
- Стоимость коммунальных услуг
(за все помещение):В отопительный сезон: - руб.В неотопительный сезон: - руб.


в избранное










































