Продажа / покупка: Купить торговое помещение, г. Минск, ул. Николы Теслы, 10, Минск,
• Помещение в жилом комплексе "Минск Мир", квартал «Евразия»
• Расположение помещения на 1-ом этаже с отдельным входом.
• Высокий трафик пешеходов.
• Удобное транспортное расположение.
· Витражные окна
· Высокие потолки
• Можно использовать и как сферу услуг, торговое помещение или административное.
· Высокая арендная ставка
• Принимаем Вашу недвижимость в зачёт этой.
• Дополнительно ответим на все Ваши вопросы по телефону.
- Год постройки: 2023
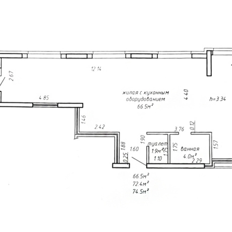
- Площадь: 74 м2
- Этаж: 1
- Ремонт: Без отделки
- Парковка: да
- Режим работы здания: 24/7
- Близость к метро: Аэродромная
- Питание: магазин
- Высота потолка: 3.34
- Мощность электричества: -
- Вход в помещение: Отдельный
- МФК: Минск Мир (Minsk World)
- Регион: Минск и район
- Населенный пункт: Минск
- Район: Октябрьский
- Микрорайон: Минск-Мир
- Адрес: Братская 6а
- Точки притяжения посетителей возле объекта: Остановка общественного транспорта
- Контактное лицо: Фёдор
- Телефон: +375 29 659-09-24
- E-mail: office@kv-st.by
- Телефон: +375 29 659-09-24
- Вид сделки: Предложение
- Цена: без НДС
- Форма собственности: Частная
- Стоимость коммунальных услуг
(за все помещение):В отопительный сезон: - руб.В неотопительный сезон: - руб.


в избранное

































































