Продажа / покупка: Помещение 132,7 м2 (продажа) ул Восточная 166, Минск,
Предлагаем в покупку коммерческое помещение на Восточной 166!
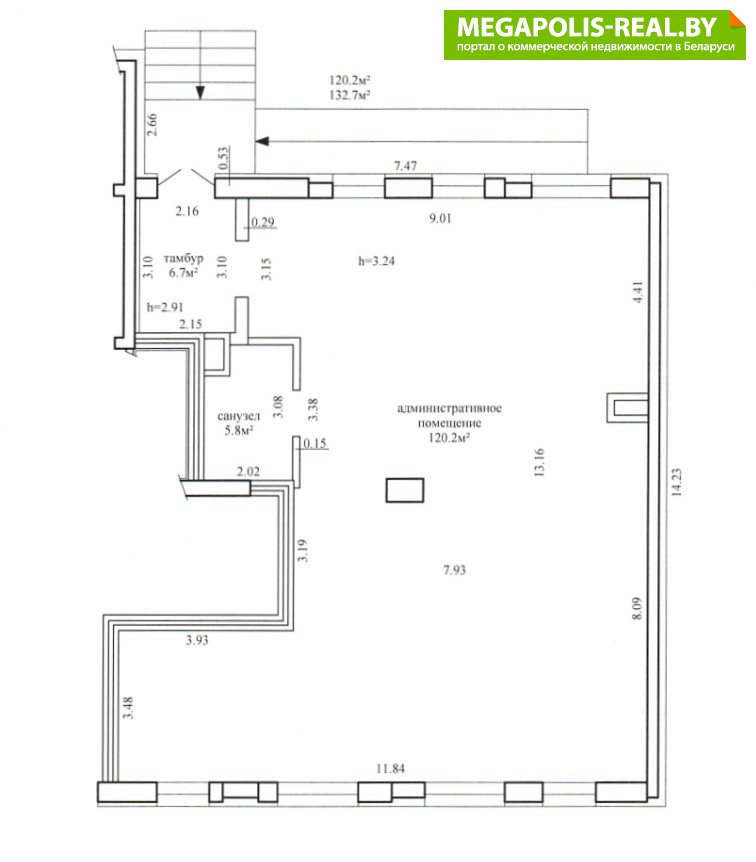
Коммерческое помещение площадью - 132,7 м² располагается на 1-м этаже жилого дома по адресу, ул. Восточная, 166.
Рядом с домом остановки общественного транспорта. Локация с хорошим пешеходным и автомобильным трафиком, жилой массив. Рядом строятся новые многоэтажные жилые дома.
• 1-й этаж жилого дома;
• Отдельный вход;
• Свой сан. узел;
• Отдельная вентиляция;
• Естественное освещение;
• Высокие потолки (3,24 м);
• Доступ в помещение 24/7;
• Подъездные пути/парковка.
Проведены коммуникации: электроснабжение, вода, отопление, вентиляционная система.
Покупатель не платит комиссию агентству!
Готовы рассмотреть Ваши предложения.
Звоните!
- Год постройки: 2025
- Площадь: 132 м2
- Этаж: 1
- Ремонт: без отделки
- Интернет: есть
- Питание: магазин
- Высота потолка: 3,24
- Мощность электричества: 30
- Регион: Минск и район
- Населенный пункт: Минск
- Район: Советский
- Микрорайон: Зеленый луг
- Адрес: Восточная 166
- Контактное лицо: Иван
- Телефон: +375 29 380-85-85
- E-mail: marielt.komm@mail.ru
- Телефон: +375 29 380-85-85
- Вид сделки: Предложение
- Цена: без НДС
- Форма собственности: Частная
- Стоимость коммунальных услуг
(за все помещение):В отопительный сезон: - руб.В неотопительный сезон: - руб.


в избранное



















































